Проект предоставлен партнером:
/
uralekodom.ru
Характеристики
-
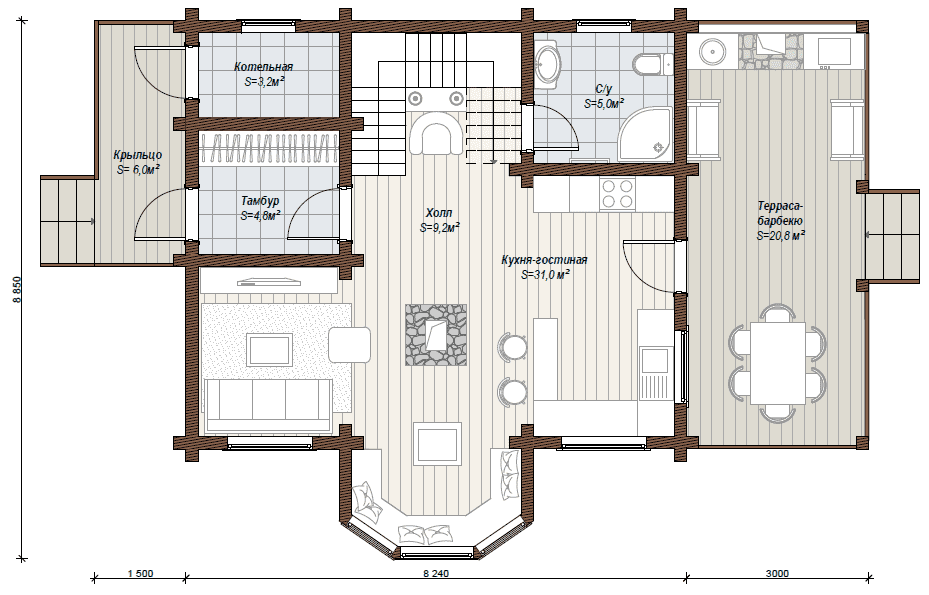
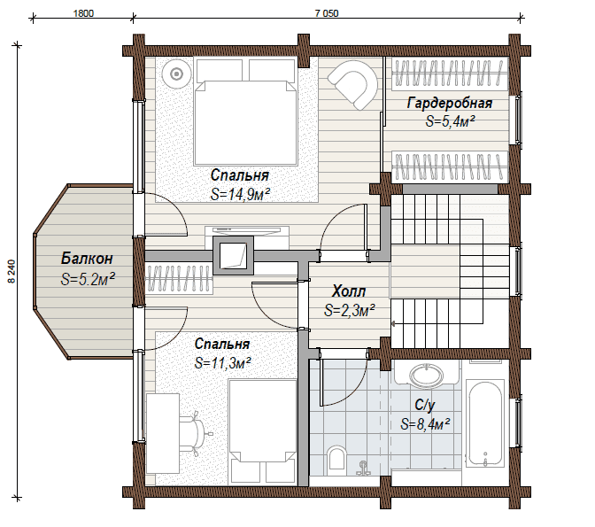
Тип строенияЖилой дом
-
МатериалКлееный брус
-
Тип фундаментаНа винтовых сваях
-
Площадь127
-
Этажность1,5
-
Габариты8,85х12,74
-
БалконДа
-
Второй светНет
-
ГаражНет
-
МансардаДа
-
Сауна/БассейнНет
-
ТеррасаДа
-
Цокольный этажНет






