Проект предоставлен партнером:
/
uralekodom.ru
Характеристики
-
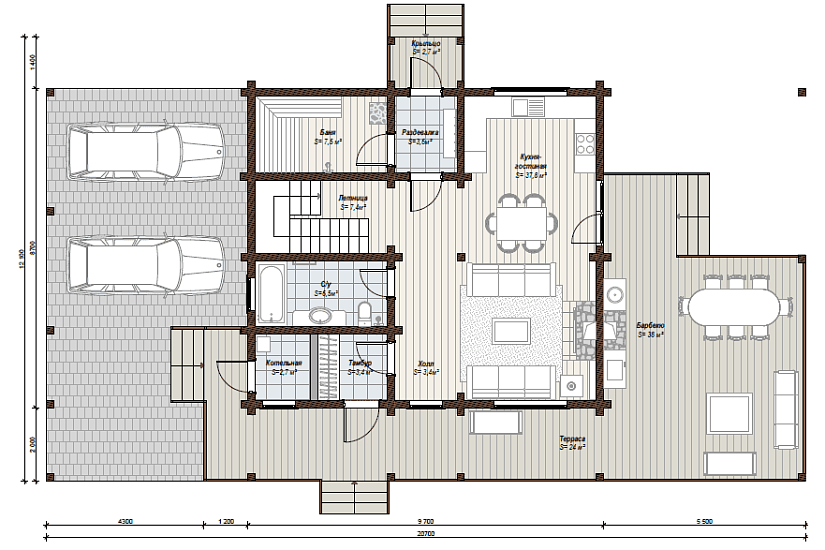
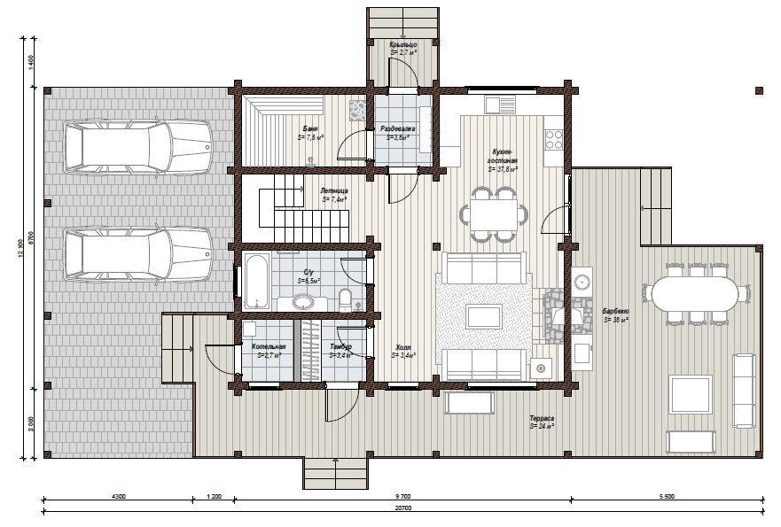
Тип строенияЖилой дом
-
МатериалКлееный брус
-
Тип фундаментаНа винтовых сваях
-
Площадь222
-
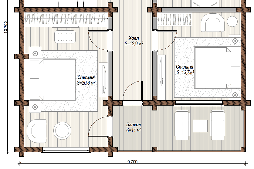
Этажность1,5
-
Габариты20700х12100
-
БалконДа
-
Второй светНет
-
ГаражДа
-
МансардаДа
-
Сауна/БассейнНет
-
ТеррасаДа
-
Цокольный этажНет






