Проект предоставлен партнером:
/
uralekodom.ru
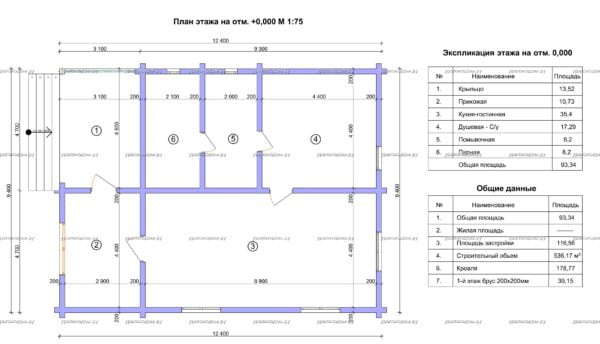
Характеристики
-
Тип строенияБаня
-
МатериалКлееный брус
-
Тип фундаментаНа винтовых сваях
-
Площадь93
-
Этажность1
-
Габариты12000х9000
-
БалконНет
-
Второй светНет
-
ГаражНет
-
МансардаНет
-
Сауна/БассейнНет
-
ТеррасаДа
-
Цокольный этажНет



