Проект предоставлен партнером:
/
uralekodom.ru
Характеристики
-
Тип строенияБаня
-
МатериалПроф. брус
-
Тип фундаментаНа винтовых сваях
-
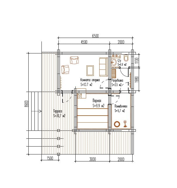
Площадь71
-
Этажность1
-
Габариты8000х8900
-
БалконНет
-
Второй светНет
-
ГаражНет
-
МансардаНет
-
Сауна/БассейнНет
-
ТеррасаДа
-
Цокольный этажНет




