Проект предоставлен партнером:
/
www.sun-home.ru
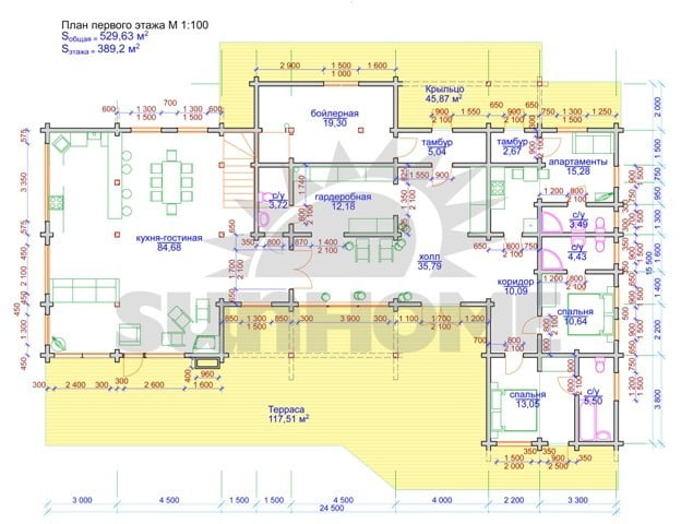
Характеристики
-
Тип строенияОбщественное здание
-
МатериалКлееный брус
-
Тип фундаментаНа винтовых сваях
-
Площадь530
-
Этажность2
-
Габариты24500х15500
-
БалконНет
-
Второй светНет
-
ГаражНет
-
МансардаНет
-
Сауна/БассейнНет
-
ТеррасаДа
-
Цокольный этажНет




