Проект предоставлен партнером:
/
www.sun-home.ru
Характеристики
-
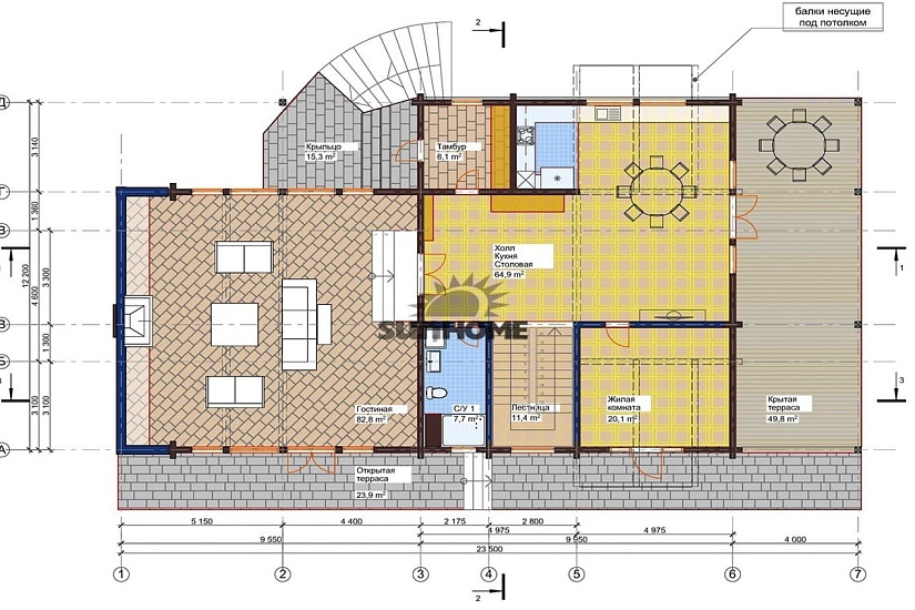
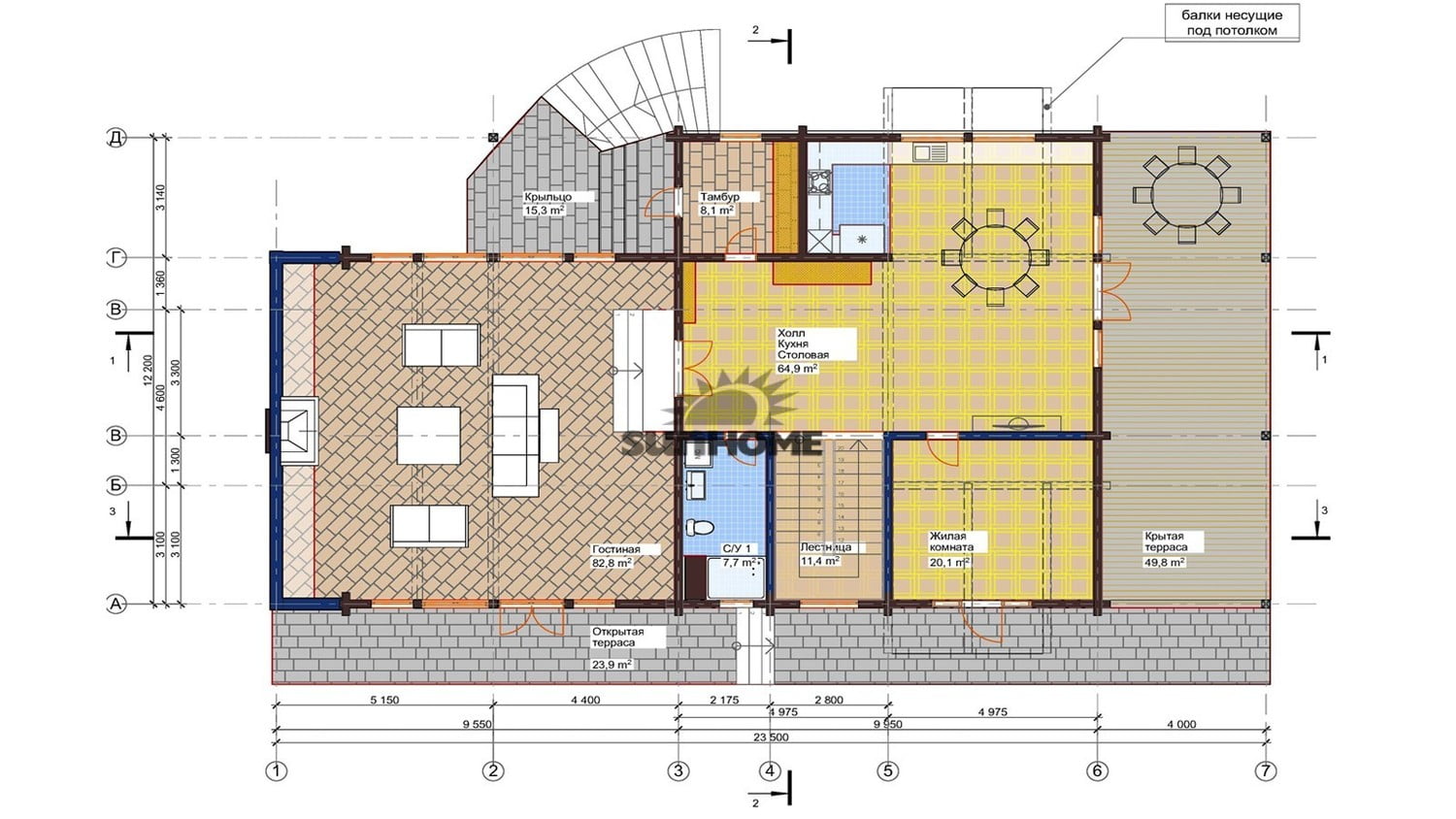
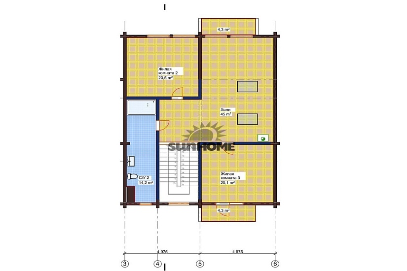
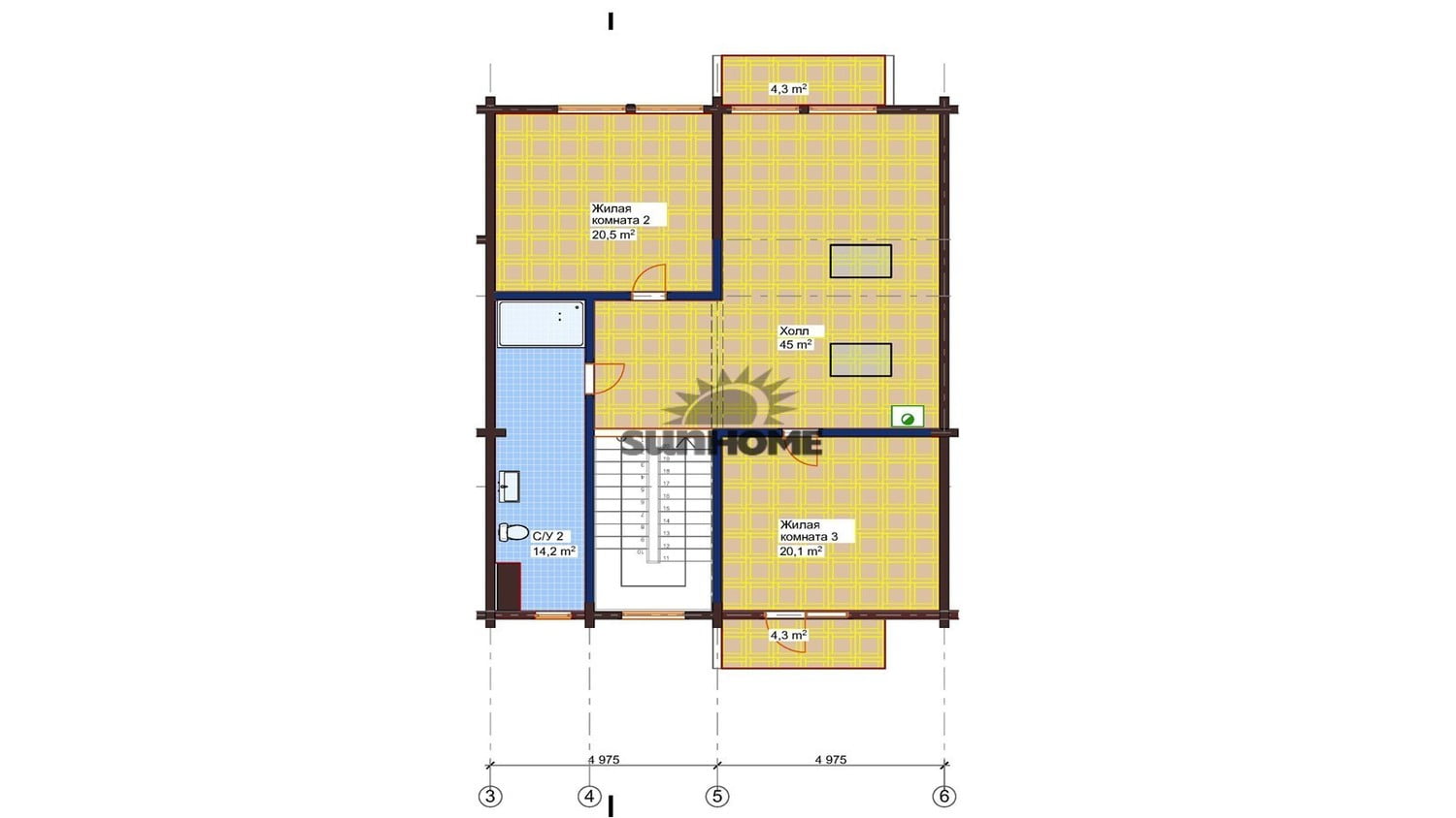
Тип строенияЖилой дом
-
МатериалКлееный брус
-
Тип фундаментаНа винтовых сваях
-
Площадь393
-
Этажность1,5
-
Габариты23500х12200
-
БалконДа
-
Второй светНет
-
ГаражНет
-
МансардаДа
-
Сауна/БассейнНет
-
ТеррасаДа
-
Цокольный этажНет



