Проект предоставлен партнером:
/
new.xn--80ahe0acijj3i.xn--p1ai/
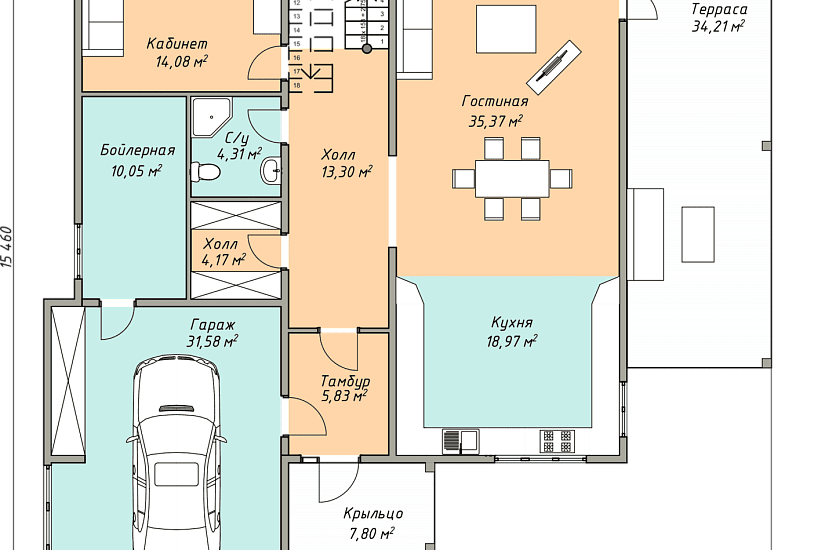
Характеристики
-
Тип строенияЖилой дом
-
МатериалДеревянный каркас
-
Тип фундаментаНа винтовых сваях
-
Площадь290
-
Этажность2
-
Габариты15870х15460
-
БалконНет
-
Второй светДа
-
ГаражДа
-
МансардаНет
-
Сауна/БассейнНет
-
ТеррасаДа
-
Цокольный этажНет



