Проект предоставлен партнером:
/
new.xn--80ahe0acijj3i.xn--p1ai/
Характеристики
-
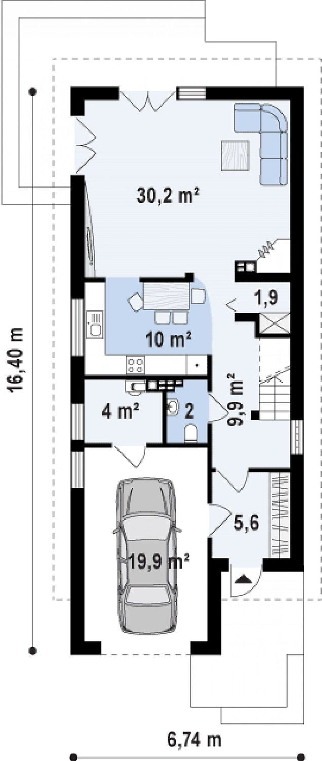
Тип строенияЖилой дом
-
МатериалГазосиликат
-
Тип фундаментаНа винтовых сваях
-
Площадь155
-
Этажность1,5
-
Габариты16000Х7000
-
БалконДа
-
Второй светНет
-
ГаражДа
-
МансардаДа
-
Сауна/БассейнНет
-
ТеррасаДа
-
Цокольный этажНет



