Проект предоставлен партнером:
/
new.xn--80ahe0acijj3i.xn--p1ai/
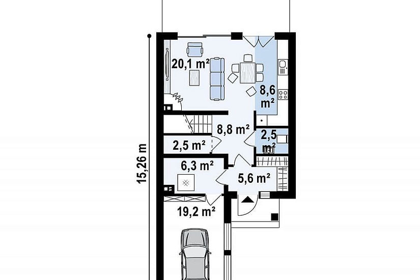
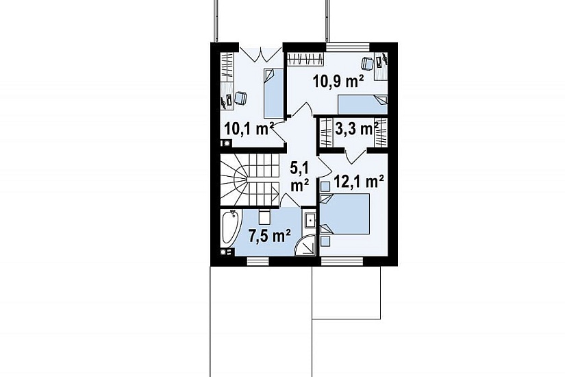
Характеристики
-
Тип строенияЖилой дом
-
МатериалГазосиликат
-
Тип фундаментаНа винтовых сваях
-
Площадь123
-
Этажность2
-
Габариты15000х8000
-
БалконДа
-
Второй светНет
-
ГаражДа
-
МансардаНет
-
Сауна/БассейнНет
-
ТеррасаДа
-
Цокольный этажНет



