Проект предоставлен партнером:
/
new.xn--80ahe0acijj3i.xn--p1ai/
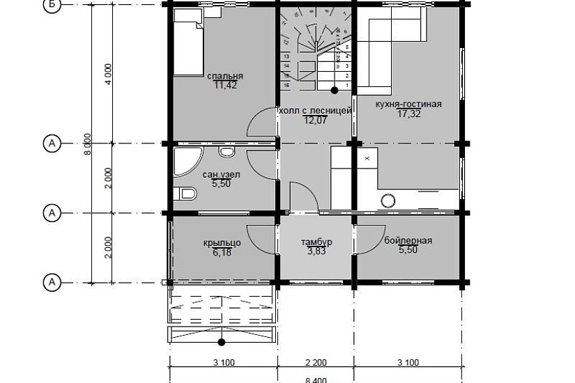
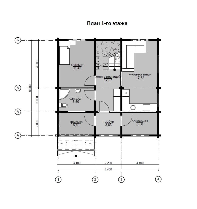
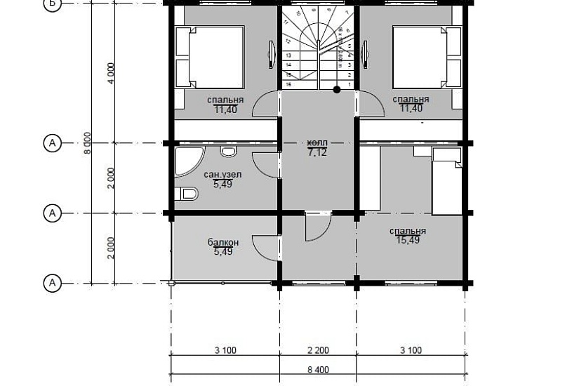
Характеристики
-
Тип строенияЖилой дом
-
МатериалКлееный брус
-
Тип фундаментаНа винтовых сваях
-
Площадь118
-
Этажность1,5
-
Габариты8400х8000
-
БалконДа
-
Второй светНет
-
ГаражНет
-
МансардаДа
-
Сауна/БассейнНет
-
ТеррасаНет
-
Цокольный этажНет



