Характеристики
-
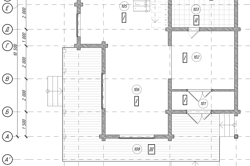
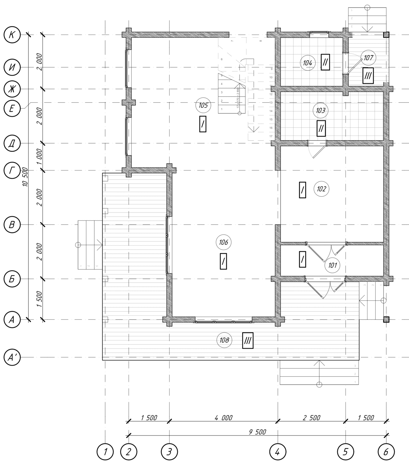
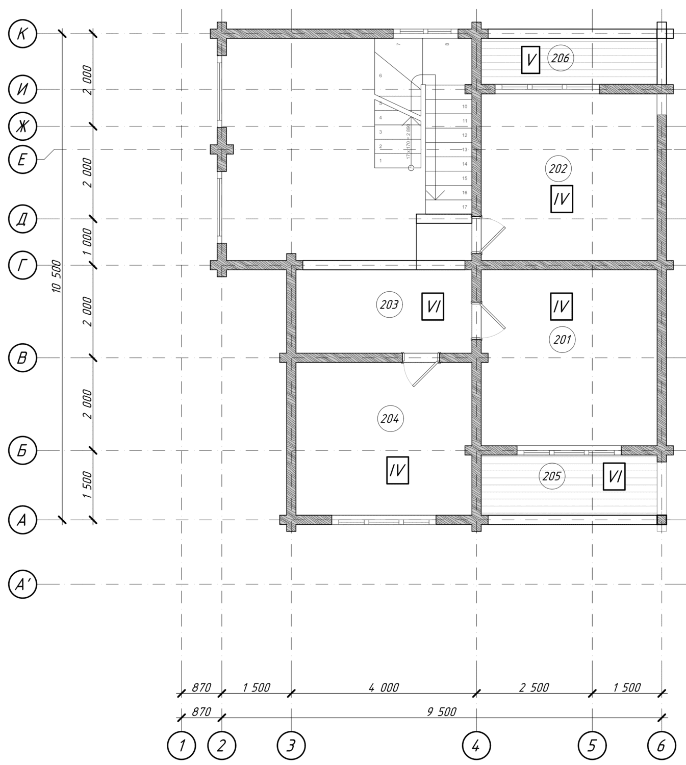
Тип строенияЖилой дом
-
МатериалПроф. брус
-
Тип фундаментаНа винтовых сваях
-
Площадь166
-
Этажность1,5
-
Габариты10500х9500
-
БалконДа
-
Второй светНет
-
ГаражНет
-
МансардаДа
-
Сауна/БассейнНет
-
ТеррасаДа
-
Цокольный этажНет







