Проект предоставлен партнером:
ООО "Рубикон" /
rubikon54.ru/
Характеристики
-
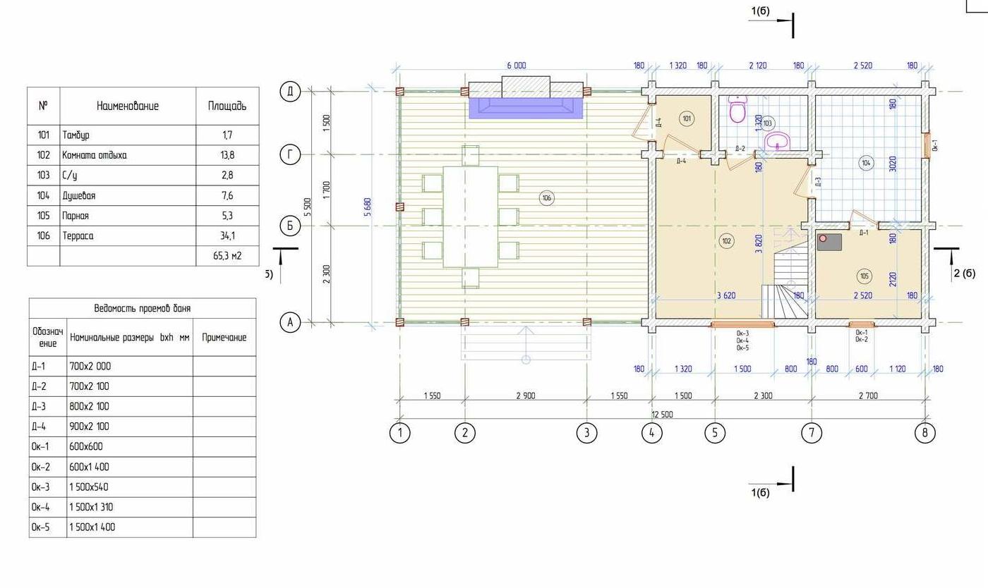
Тип строенияБаня
-
МатериалПроф. брус
-
Тип фундаментаНа винтовых сваях
-
Площадь85
-
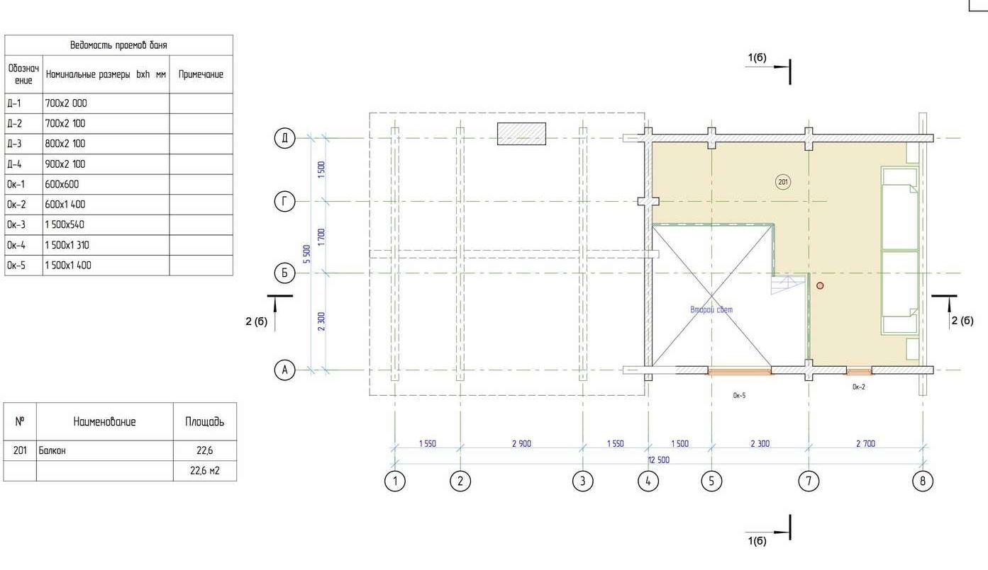
Этажность1,5
-
Габариты12500х5500
-
БалконДа
-
Второй светДа
-
ГаражНет
-
МансардаДа
-
Сауна/БассейнНет
-
ТеррасаДа
-
Цокольный этажНет


