Проект предоставлен партнером:
ООО "Рубикон" /
rubikon54.ru/
Характеристики
-
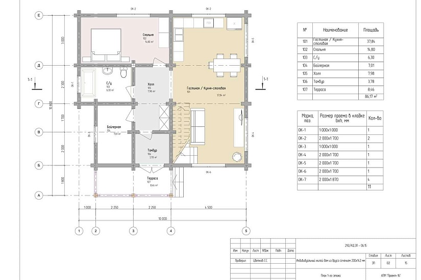
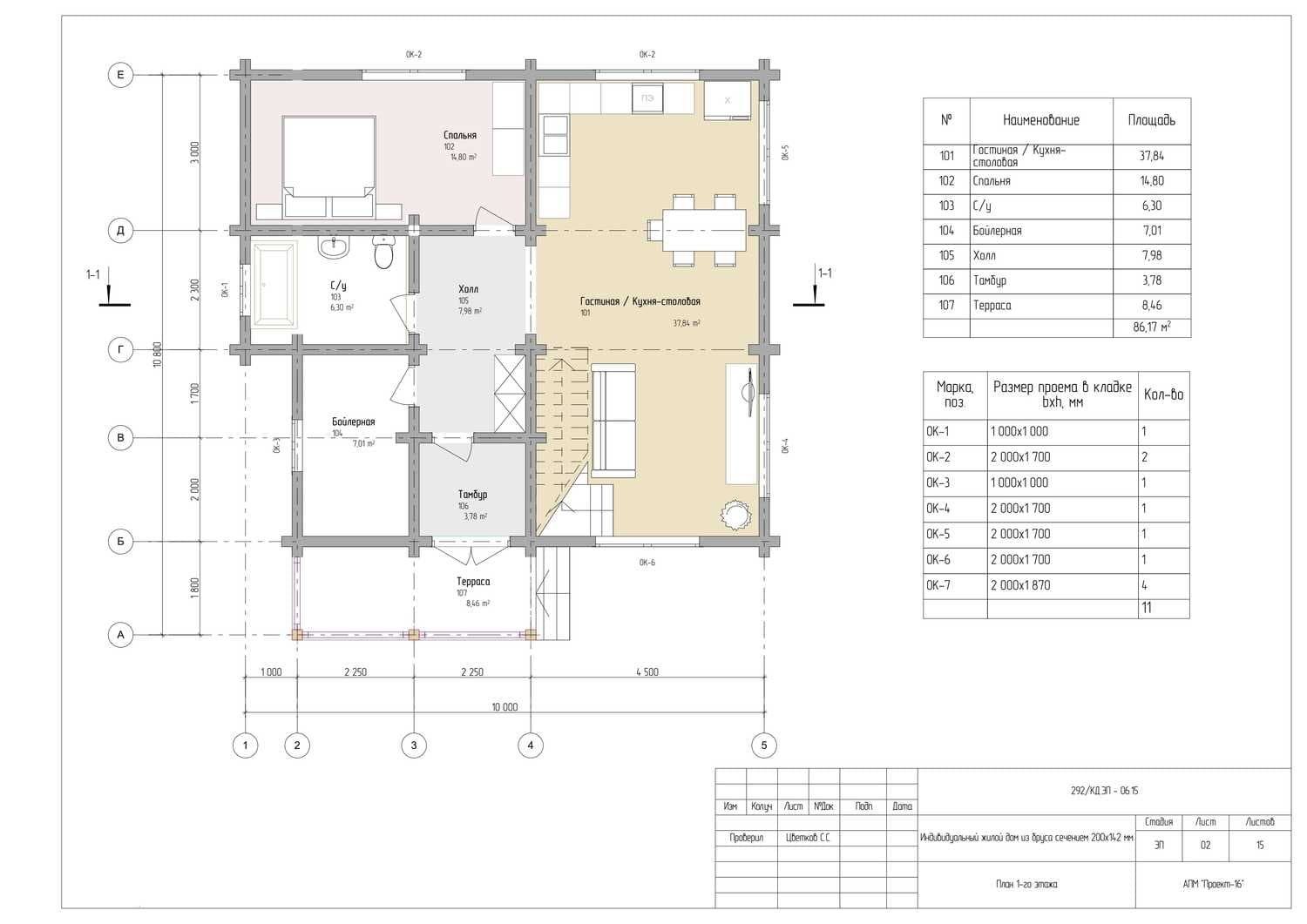
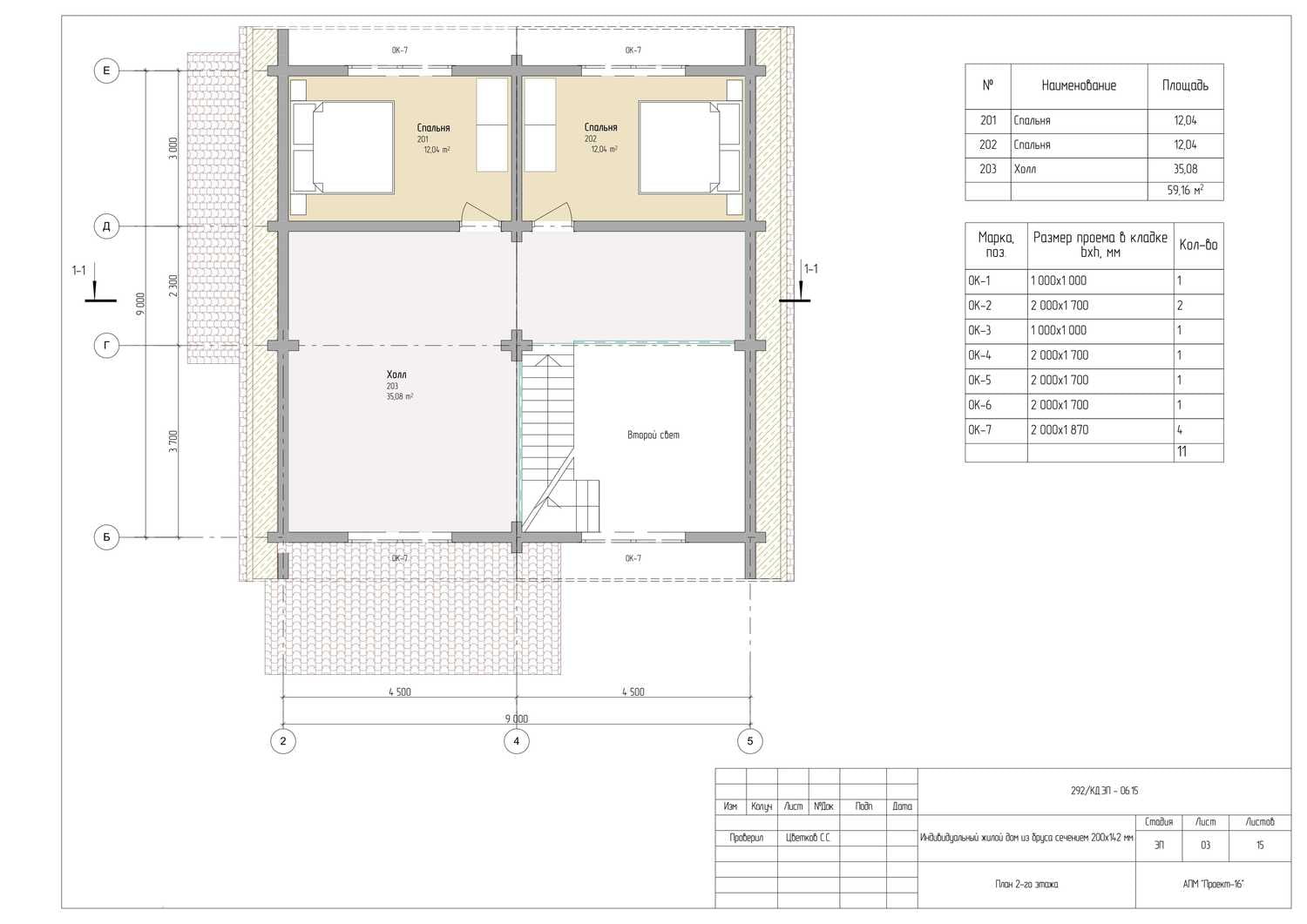
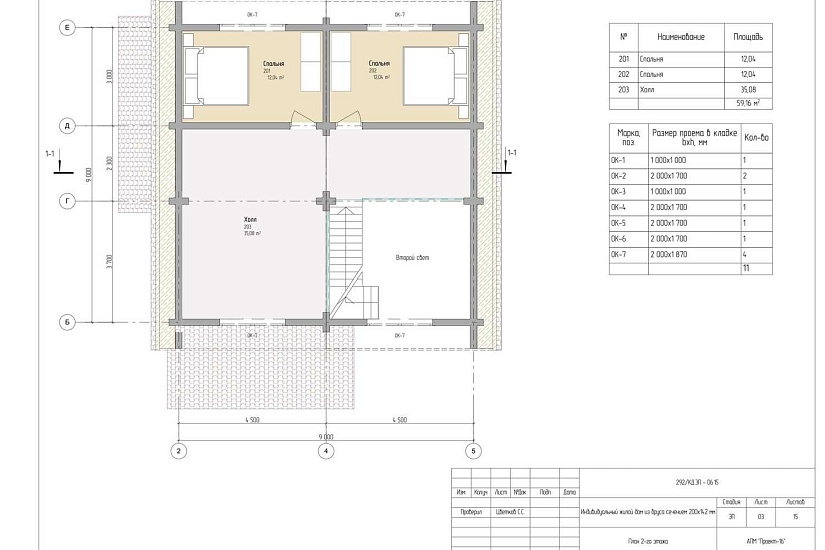
Тип строенияЖилой дом
-
МатериалПроф. брус
-
Тип фундаментаНа винтовых сваях
-
Площадь0.0
-
Этажность1,5
-
Габариты10800х10000
-
БалконНет
-
Второй светДа
-
ГаражНет
-
МансардаДа
-
Сауна/БассейнНет
-
ТеррасаДа
-
Цокольный этажНет






