Проект предоставлен партнером:
Артель № 1 /
stroimnsk.ru/
Характеристики
-
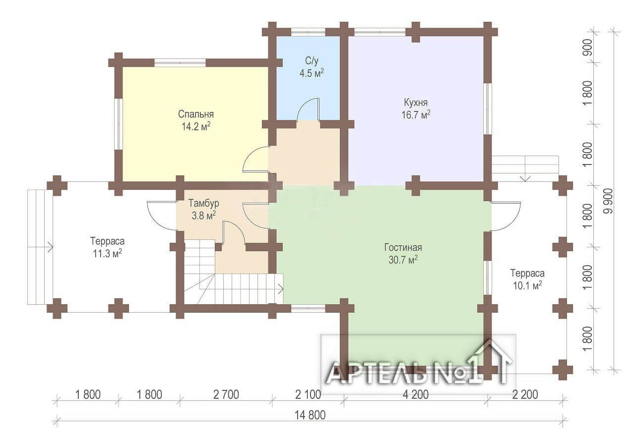
Тип строенияЖилой дом
-
МатериалБрус
-
Тип фундаментаНа винтовых сваях
-
Площадь156
-
Этажность2
-
Габариты14800х9900
-
БалконНет
-
Второй светДа
-
ГаражНет
-
МансардаДа
-
Сауна/БассейнНет
-
ТеррасаДа
-
Цокольный этажНет


