Проект предоставлен партнером:
Артель № 1 /
stroimnsk.ru/
Характеристики
-
Тип строенияЖилой дом
-
МатериалБрус
-
Тип фундаментаНа винтовых сваях
-
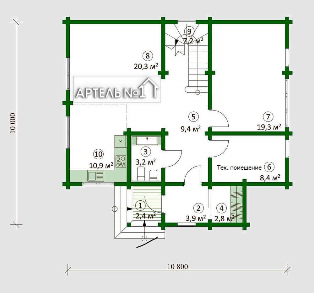
Площадь160
-
Этажность1,5
-
Габариты10800х10000
-
БалконНет
-
Второй светНет
-
ГаражНет
-
МансардаДа
-
Сауна/БассейнНет
-
ТеррасаНет
-
Цокольный этажНет


