Проект предоставлен партнером:
Артель № 1 /
stroimnsk.ru/
Характеристики
-
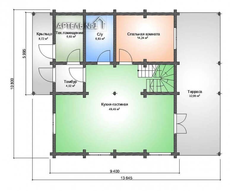
Тип строенияЖилой дом
-
МатериалБрус
-
Тип фундаментаНа винтовых сваях
-
Площадь178
-
Этажность1,5
-
Габариты10800х9400
-
БалконДа
-
Второй светНет
-
ГаражНет
-
МансардаНет
-
Сауна/БассейнНет
-
ТеррасаДа
-
Цокольный этажНет


