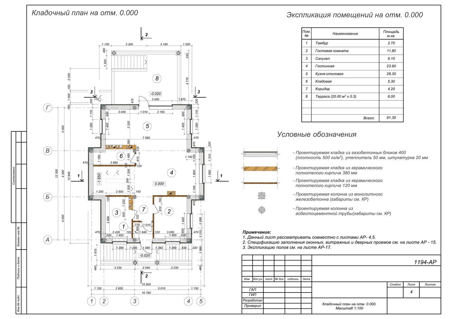
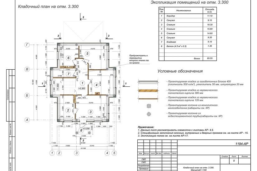
Характеристики
-
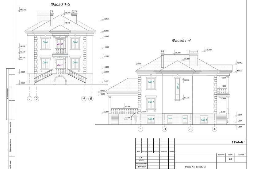
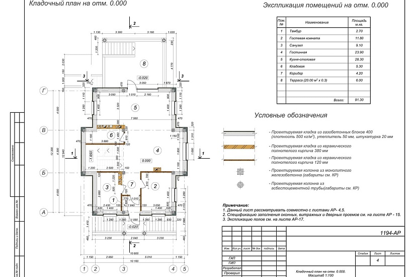
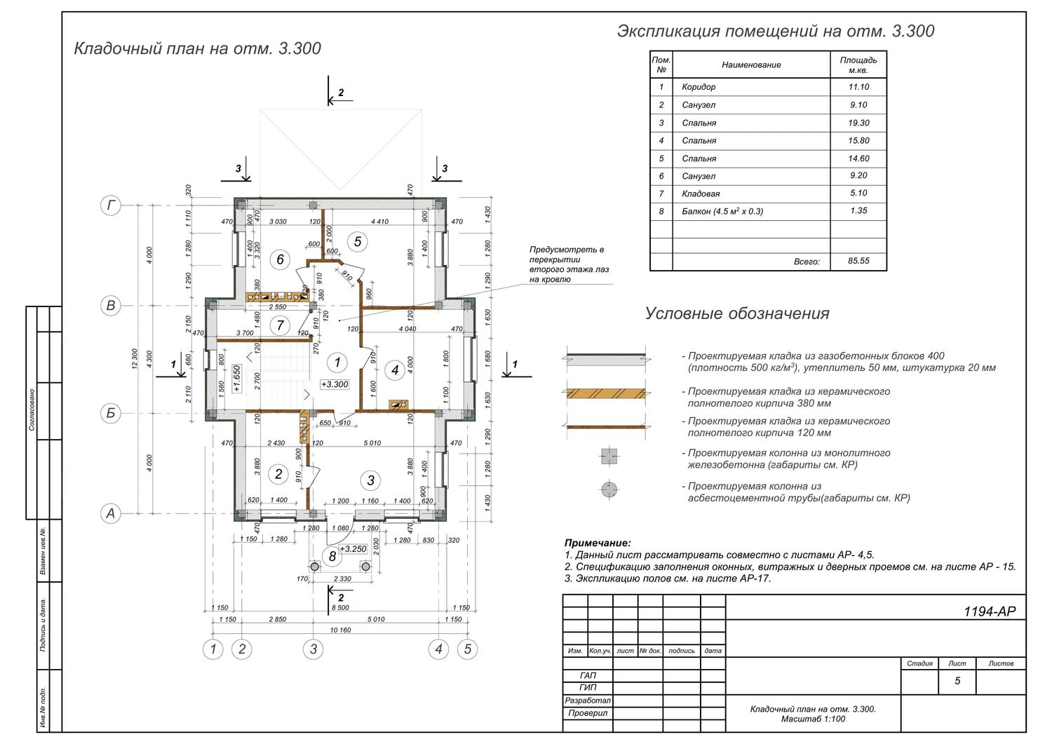
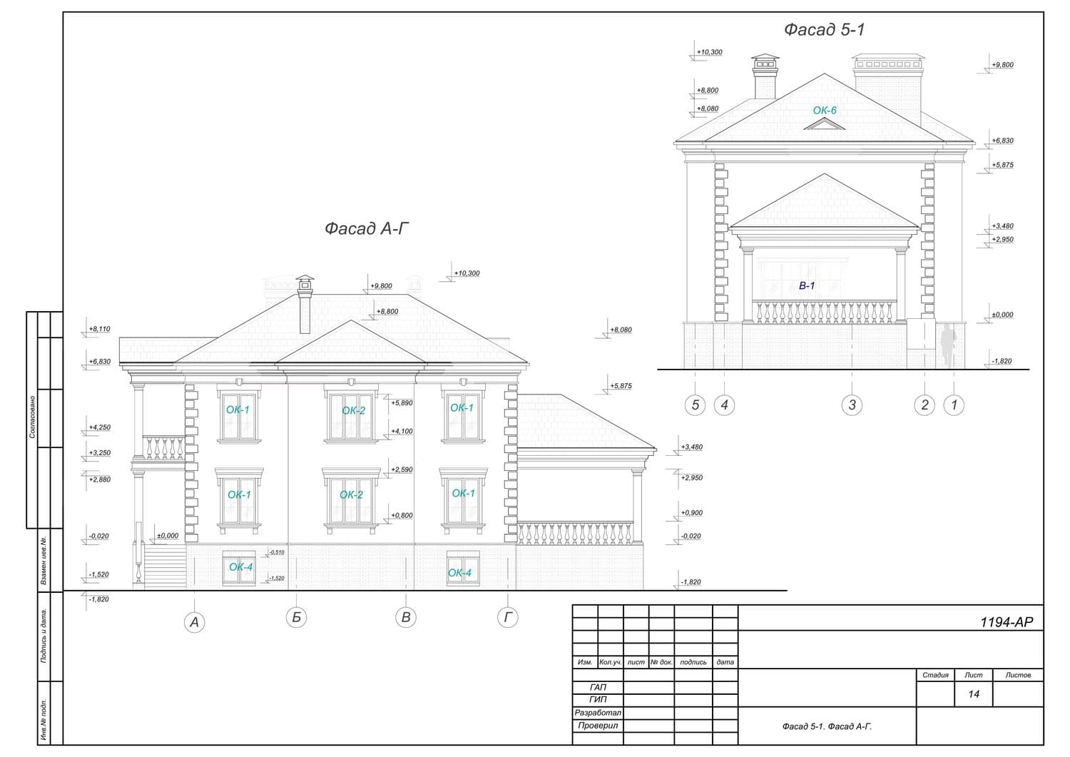
Тип строенияЖилой дом
-
МатериалГазосиликат
-
Тип фундаментаЛенточный
-
Площадь265
-
Этажность2
-
Габариты12300х10150
-
БалконДа
-
Второй светНет
-
ГаражНет
-
МансардаНет
-
Сауна/БассейнНет
-
ТеррасаДа
-
Цокольный этажДа





