Характеристики
-
Тип строенияЖилой дом
-
МатериалГазосиликат
-
Тип фундаментаЛенточный
-
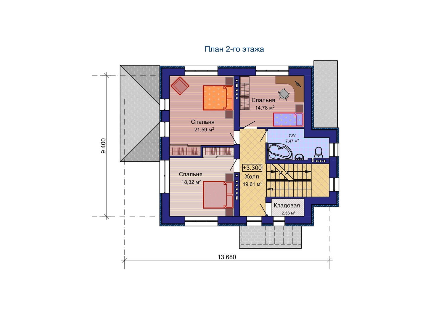
Площадь226
-
Этажность2
-
Габариты13680х9400
-
БалконНет
-
Второй светНет
-
ГаражНет
-
МансардаНет
-
Сауна/БассейнДа
-
ТеррасаДа
-
Цокольный этажДа





