Характеристики
-
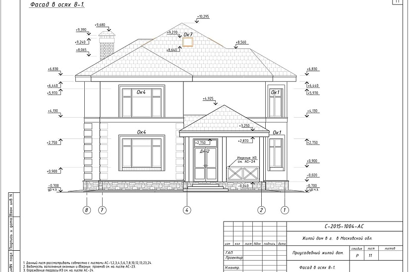
Тип строенияЖилой дом
-
МатериалКерамзитобетон
-
Тип фундаментаНа винтовых сваях
-
Площадь214
-
Этажность2
-
Габариты14360х12750
-
БалконДа
-
Второй светНет
-
ГаражНет
-
МансардаДа
-
Сауна/БассейнНет
-
ТеррасаДа
-
Цокольный этажНет








