Характеристики
-
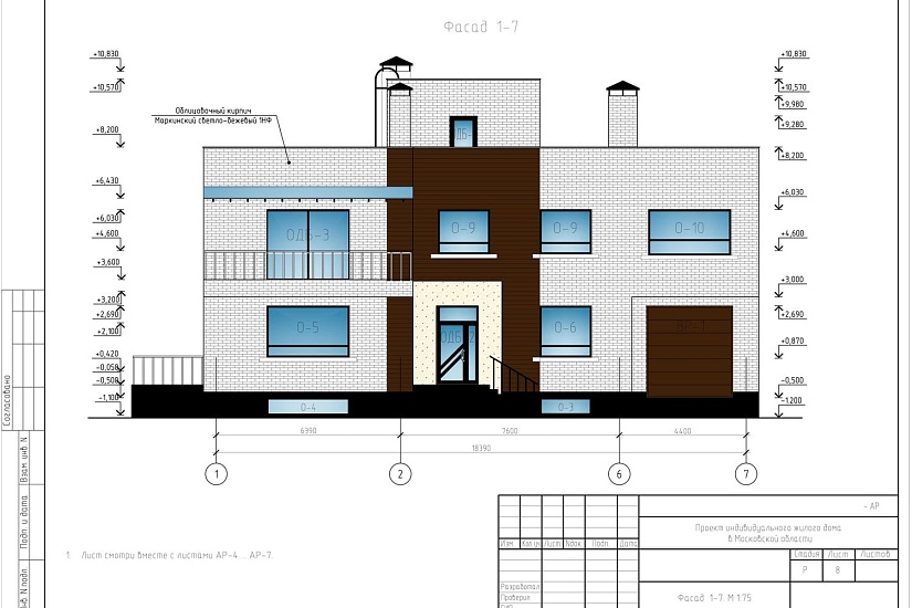
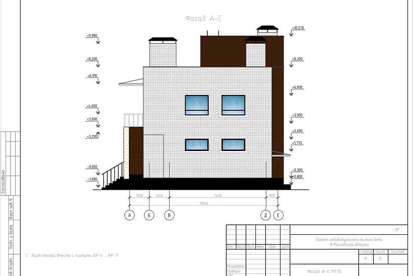
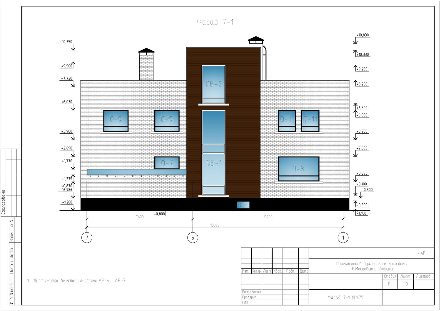
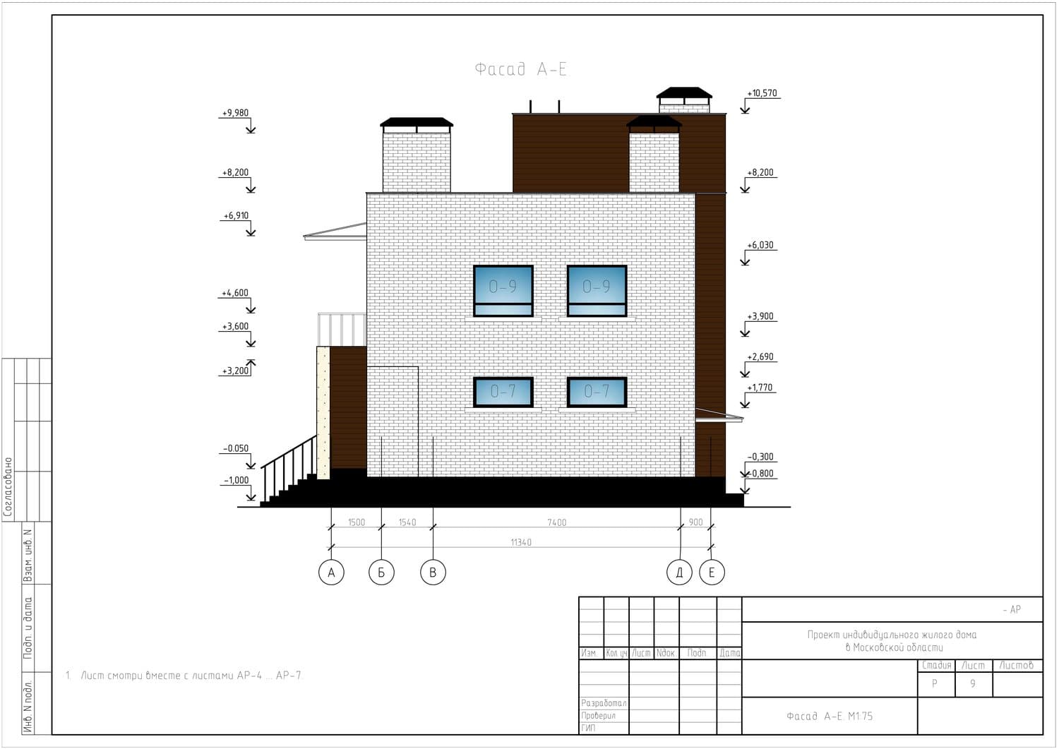
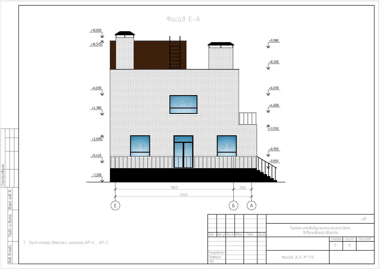
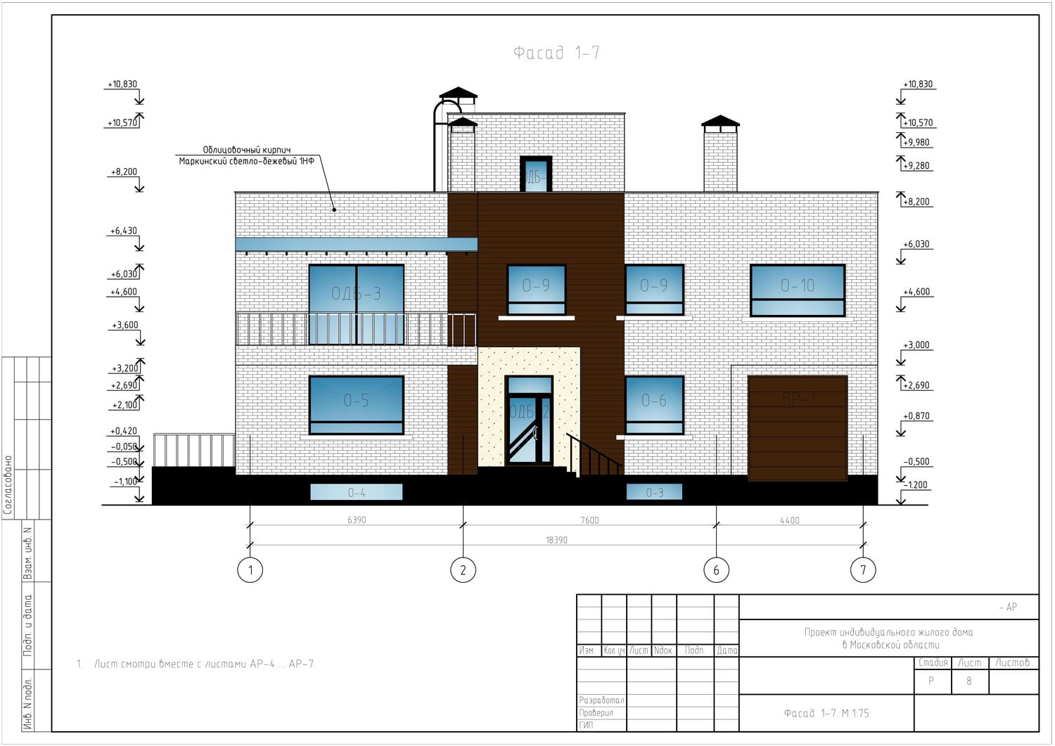
Тип строенияЖилой дом
-
МатериалSIP-панель
-
Тип фундаментаЛенточный
-
Площадь603
-
Этажность2
-
Габариты18390х11340
-
БалконНет
-
Второй светНет
-
ГаражДа
-
МансардаНет
-
Сауна/БассейнДа
-
ТеррасаДа
-
Цокольный этажНет







