Характеристики
-
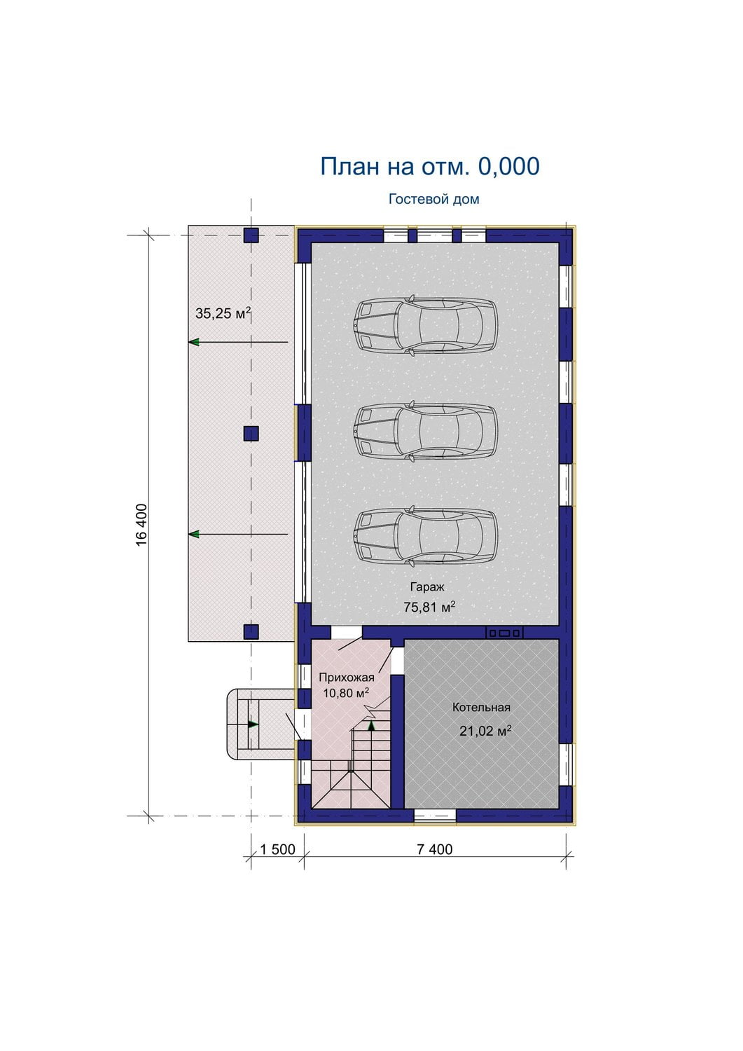
Тип строенияОбщественное здание
-
МатериалГазосиликат
-
Тип фундаментаНа винтовых сваях
-
Площадь228
-
Этажность1
-
Габариты16400х8900
-
БалконНет
-
Второй светНет
-
ГаражДа
-
МансардаДа
-
Сауна/БассейнНет
-
ТеррасаНет
-
Цокольный этажНет






