Характеристики
-
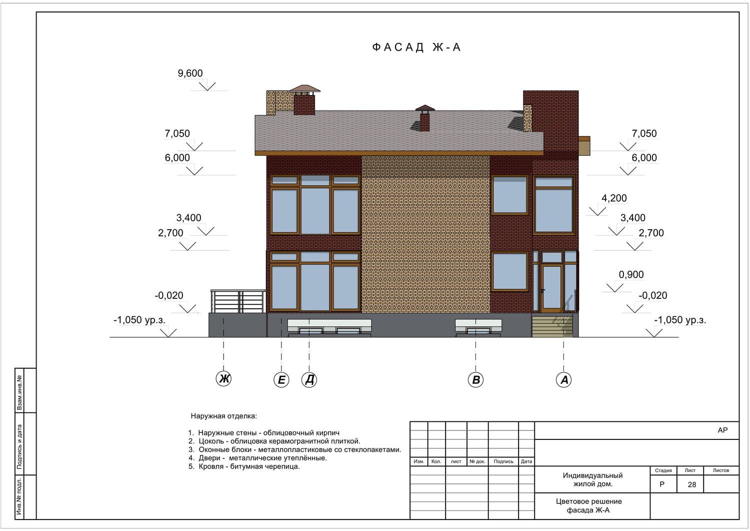
Тип строенияЖилой дом
-
МатериалКирпич
-
Тип фундаментаЛенточный
-
Площадь330
-
Этажность2
-
Габариты12200х11200
-
БалконНет
-
Второй светНет
-
ГаражНет
-
МансардаНет
-
Сауна/БассейнНет
-
ТеррасаДа
-
Цокольный этажДа







