Характеристики
-
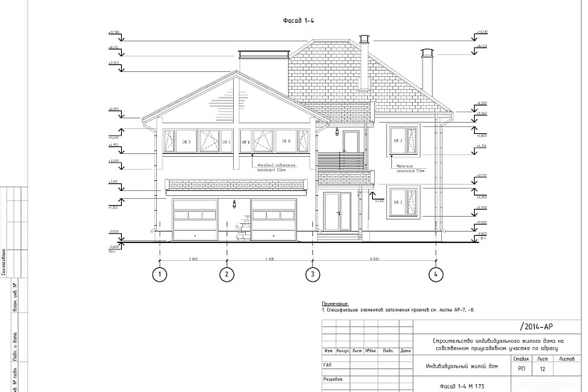
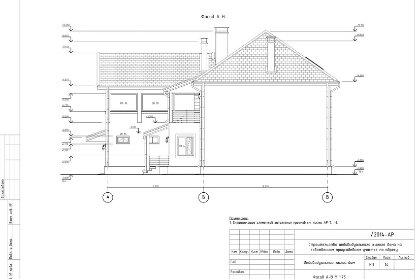
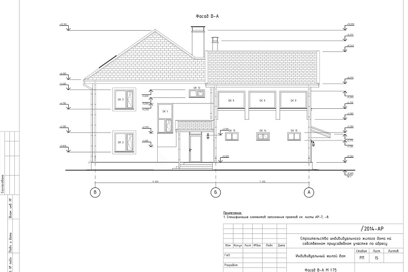
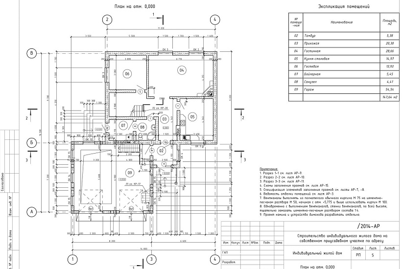
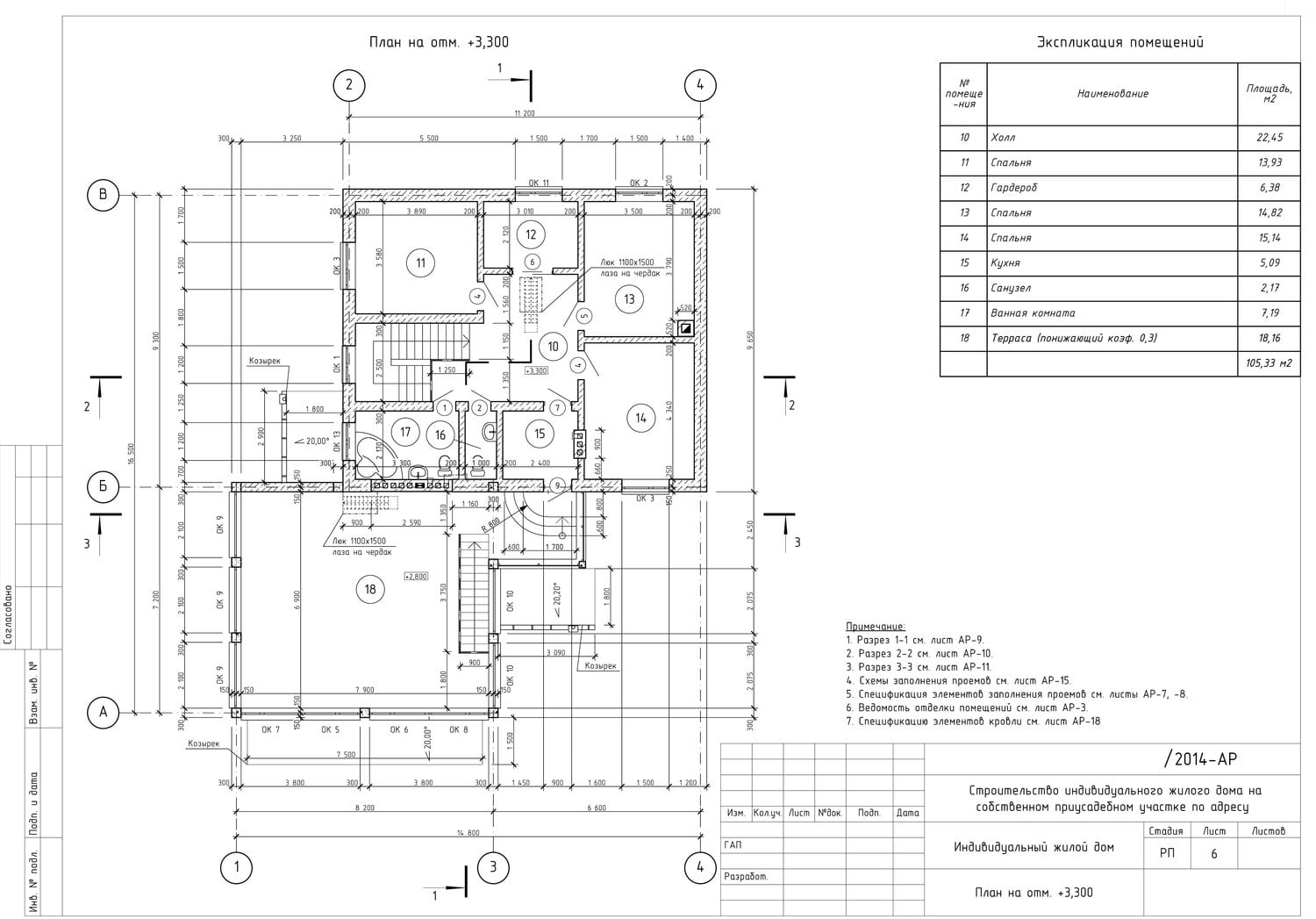
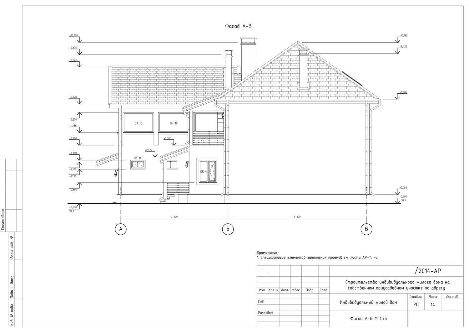
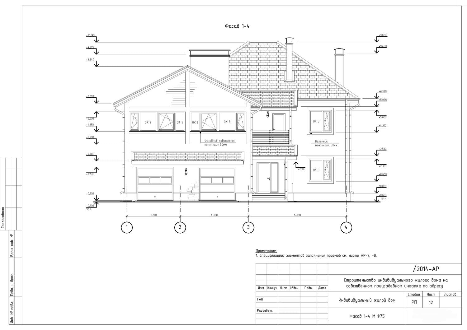
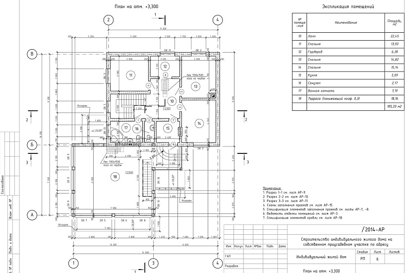
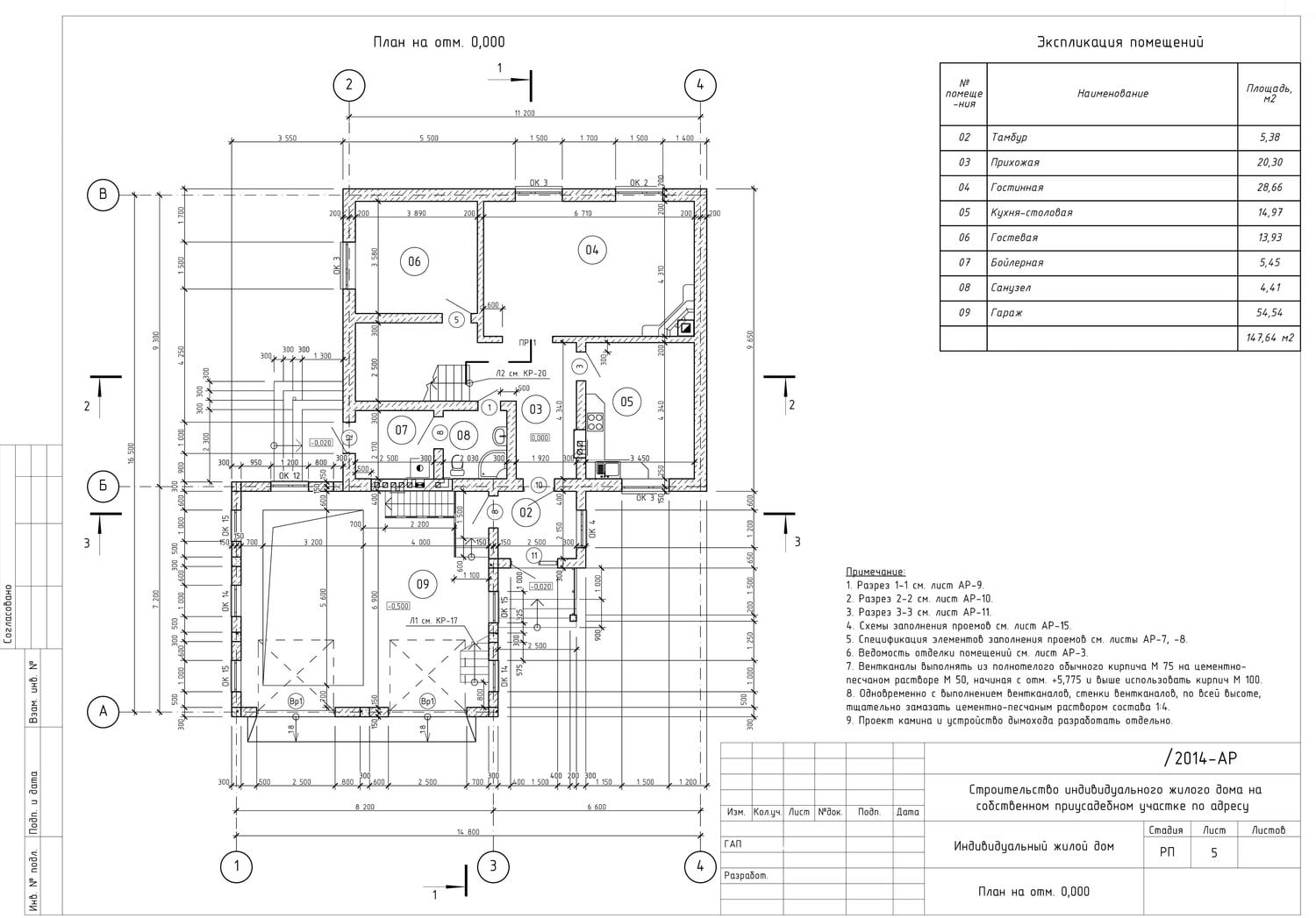
Тип строенияЖилой дом
-
МатериалШлакоблок
-
Тип фундаментаЛенточный
-
Площадь307
-
Этажность2
-
Габариты16500х14800
-
БалконНет
-
Второй светНет
-
ГаражДа
-
МансардаНет
-
Сауна/БассейнНет
-
ТеррасаДа
-
Цокольный этажНет







