Характеристики
-
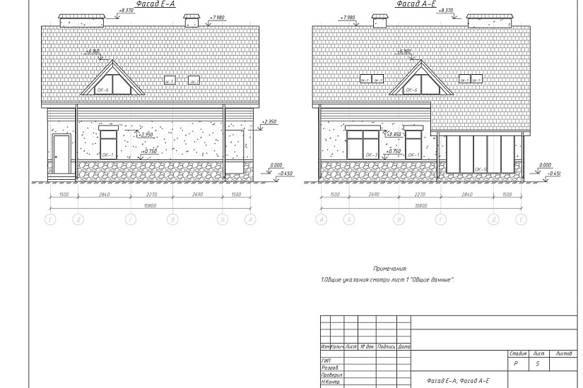
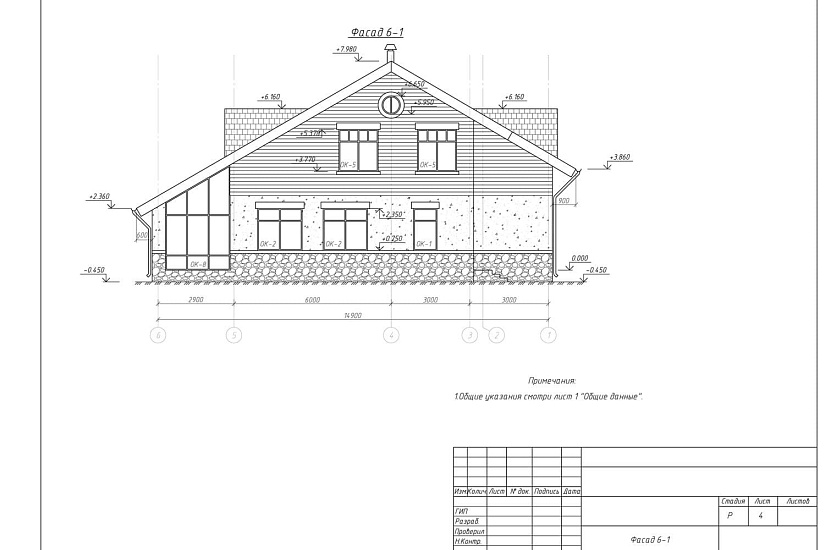
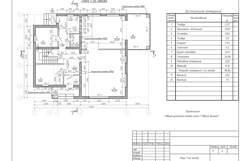
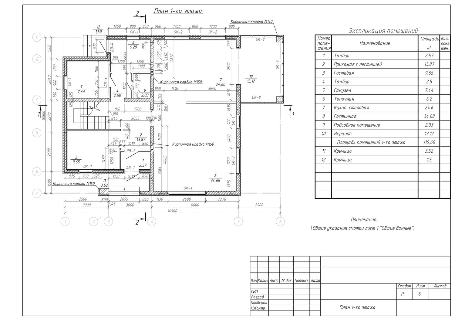
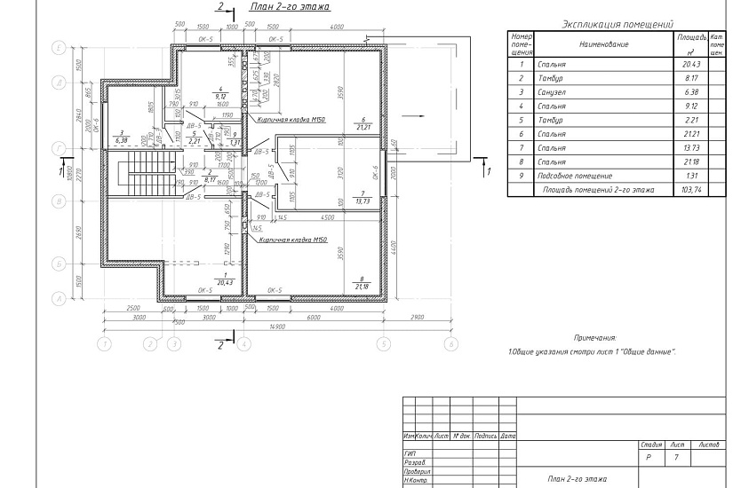
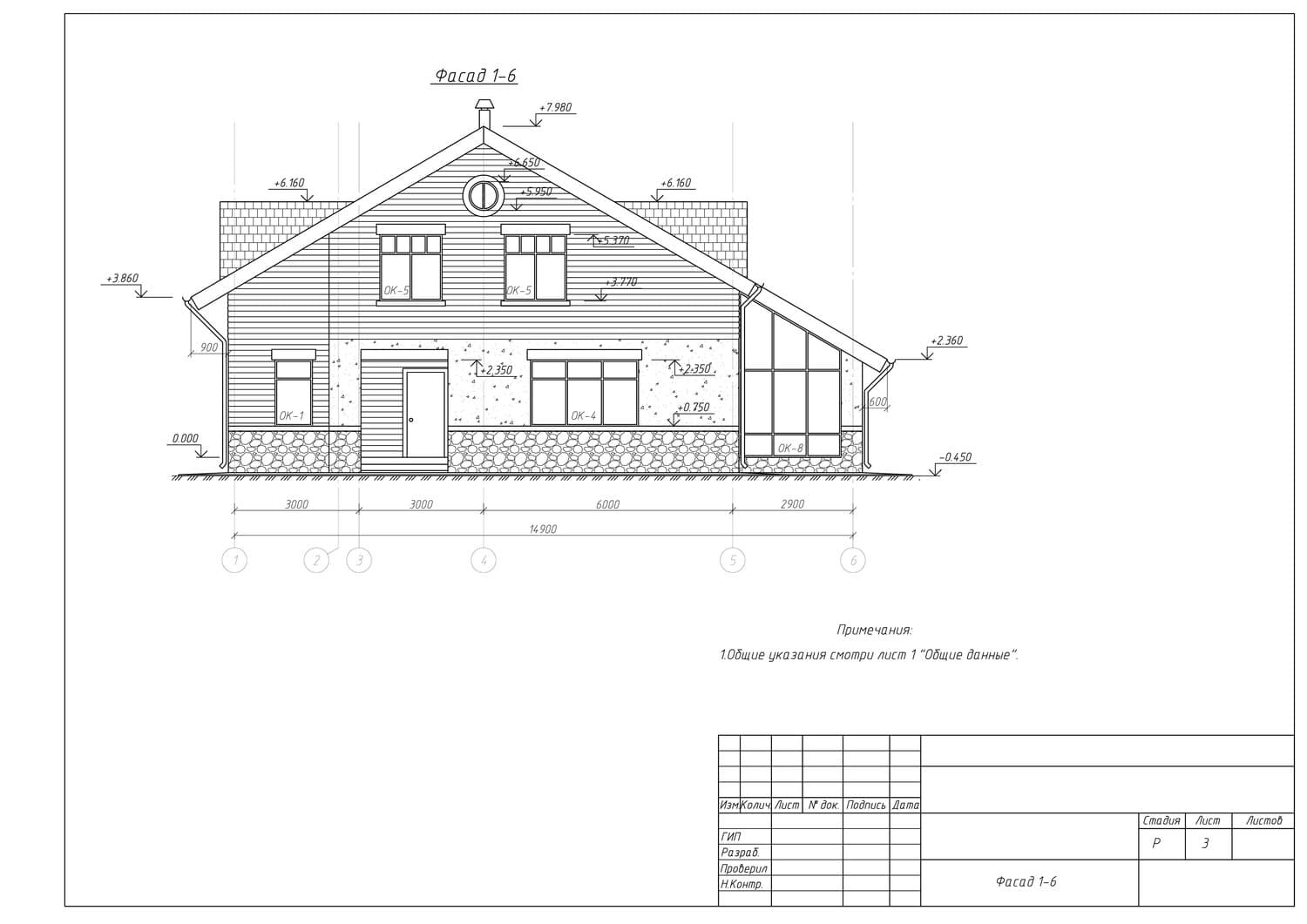
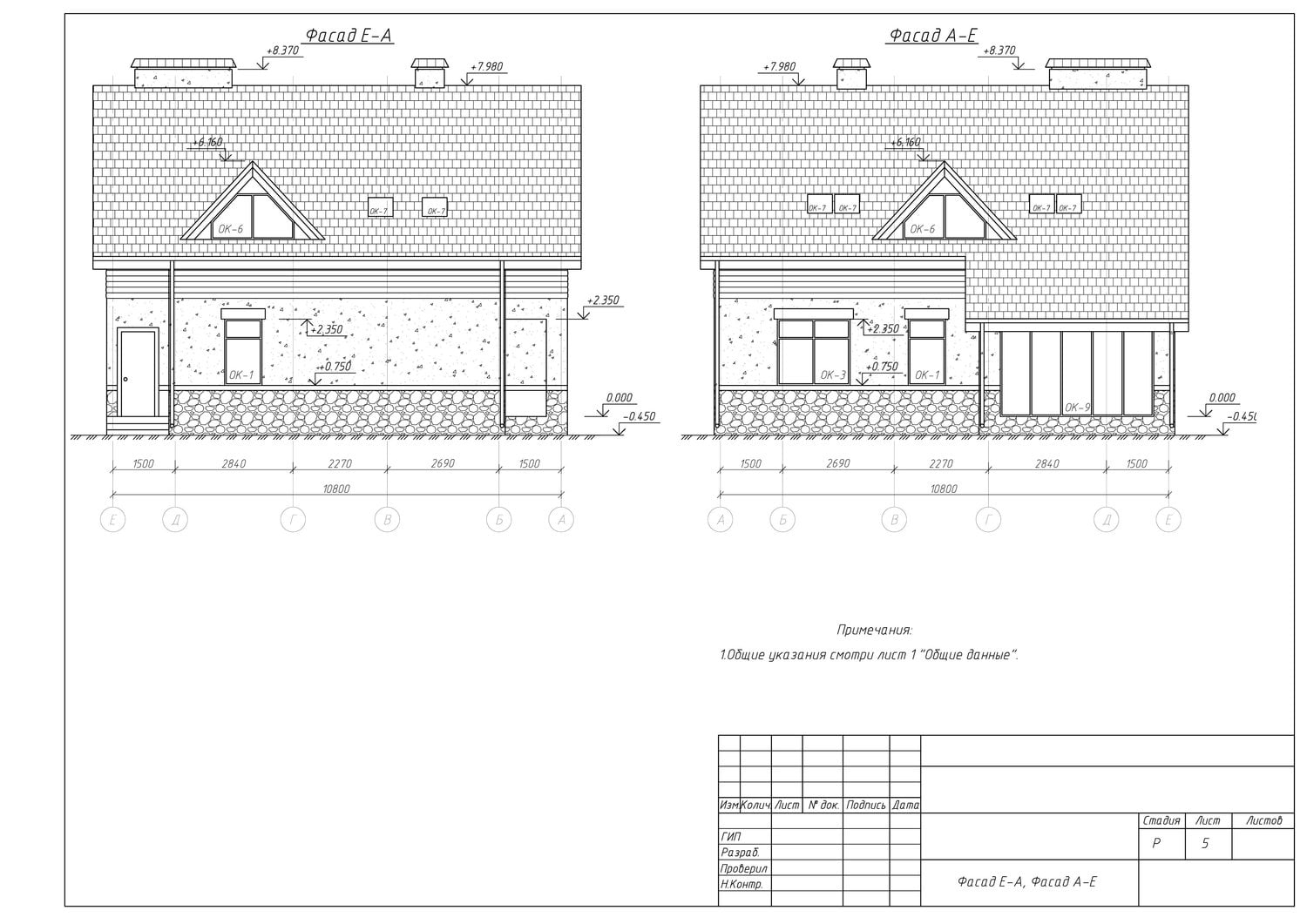
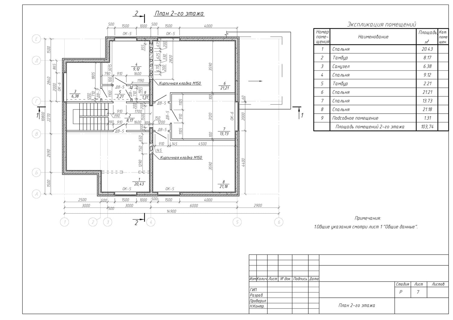
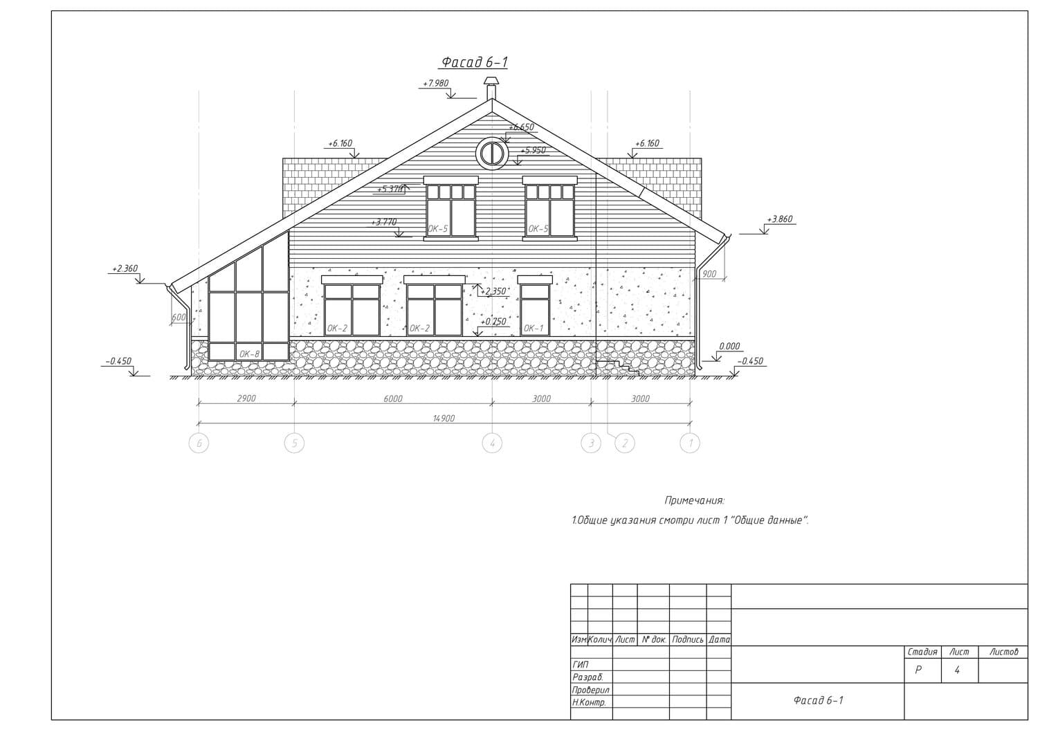
Тип строенияЖилой дом
-
МатериалШлакоблок
-
Тип фундаментаНа винтовых сваях
-
Площадь220
-
Этажность1
-
Габариты14900х10800
-
БалконНет
-
Второй светНет
-
ГаражНет
-
МансардаДа
-
Сауна/БассейнНет
-
ТеррасаНет
-
Цокольный этажНет






