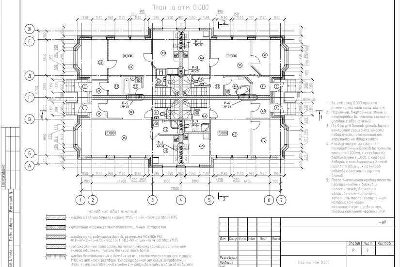
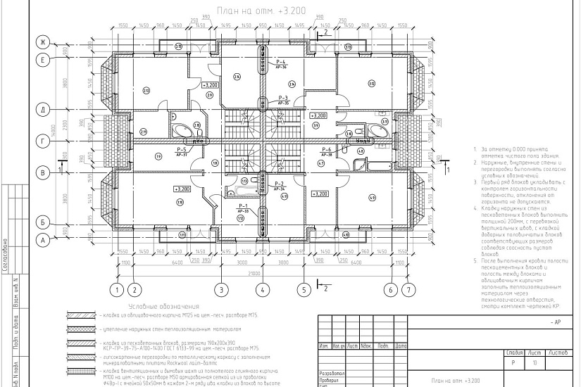
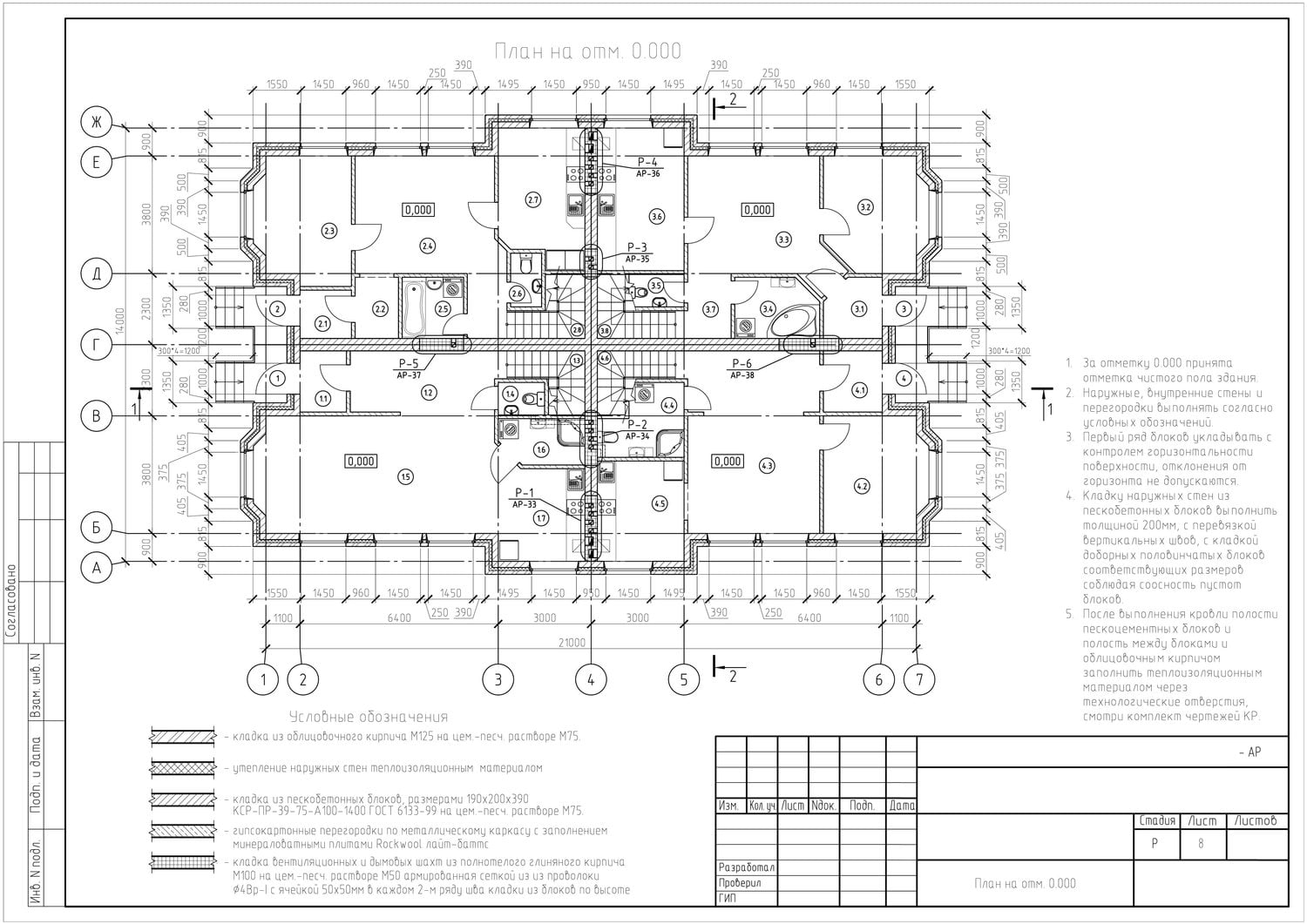
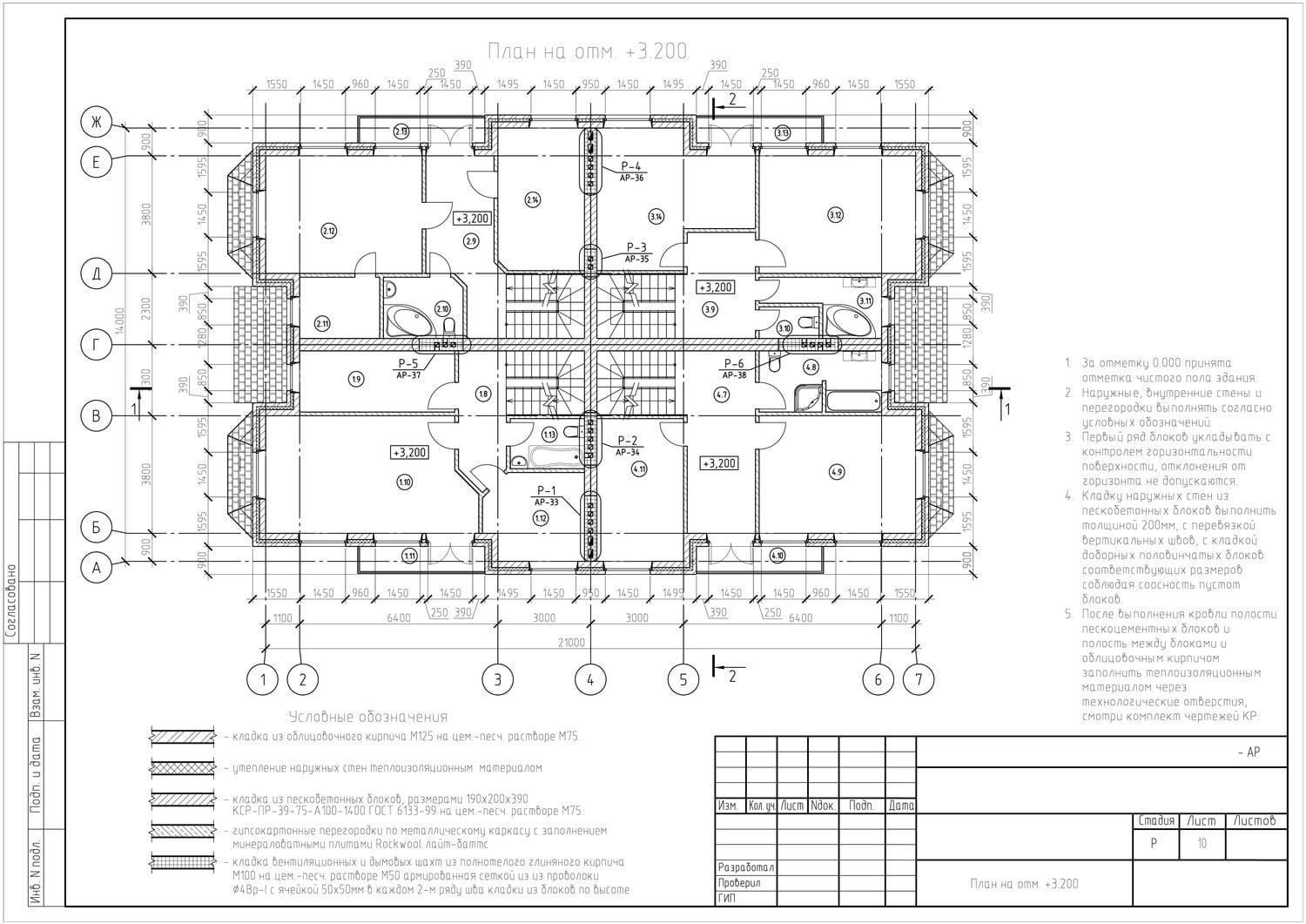
Характеристики
-
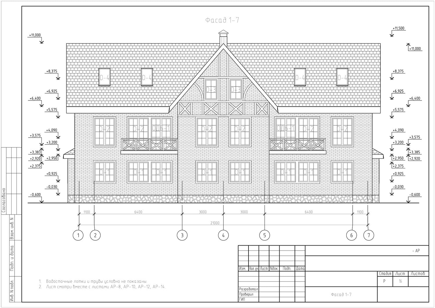
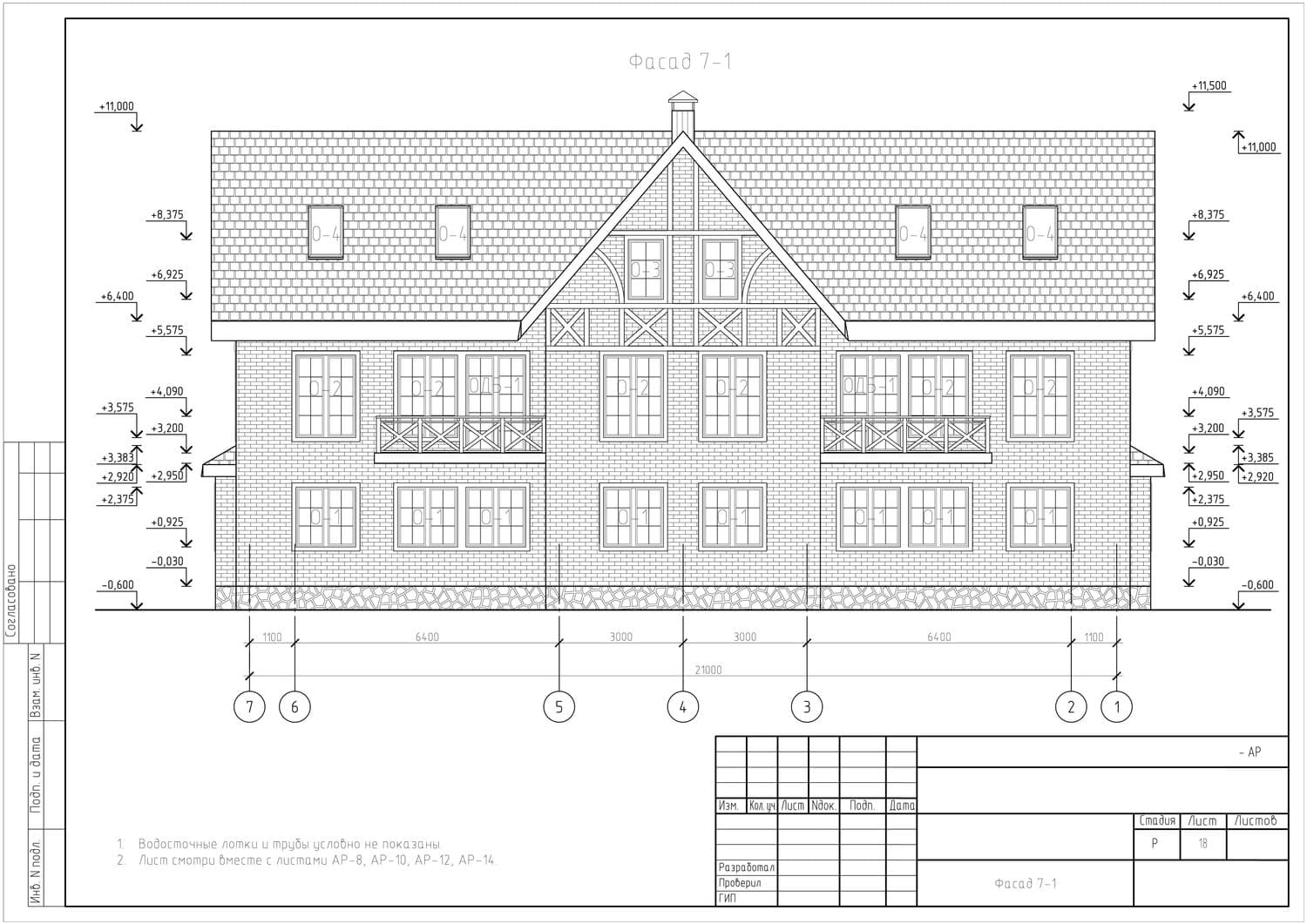
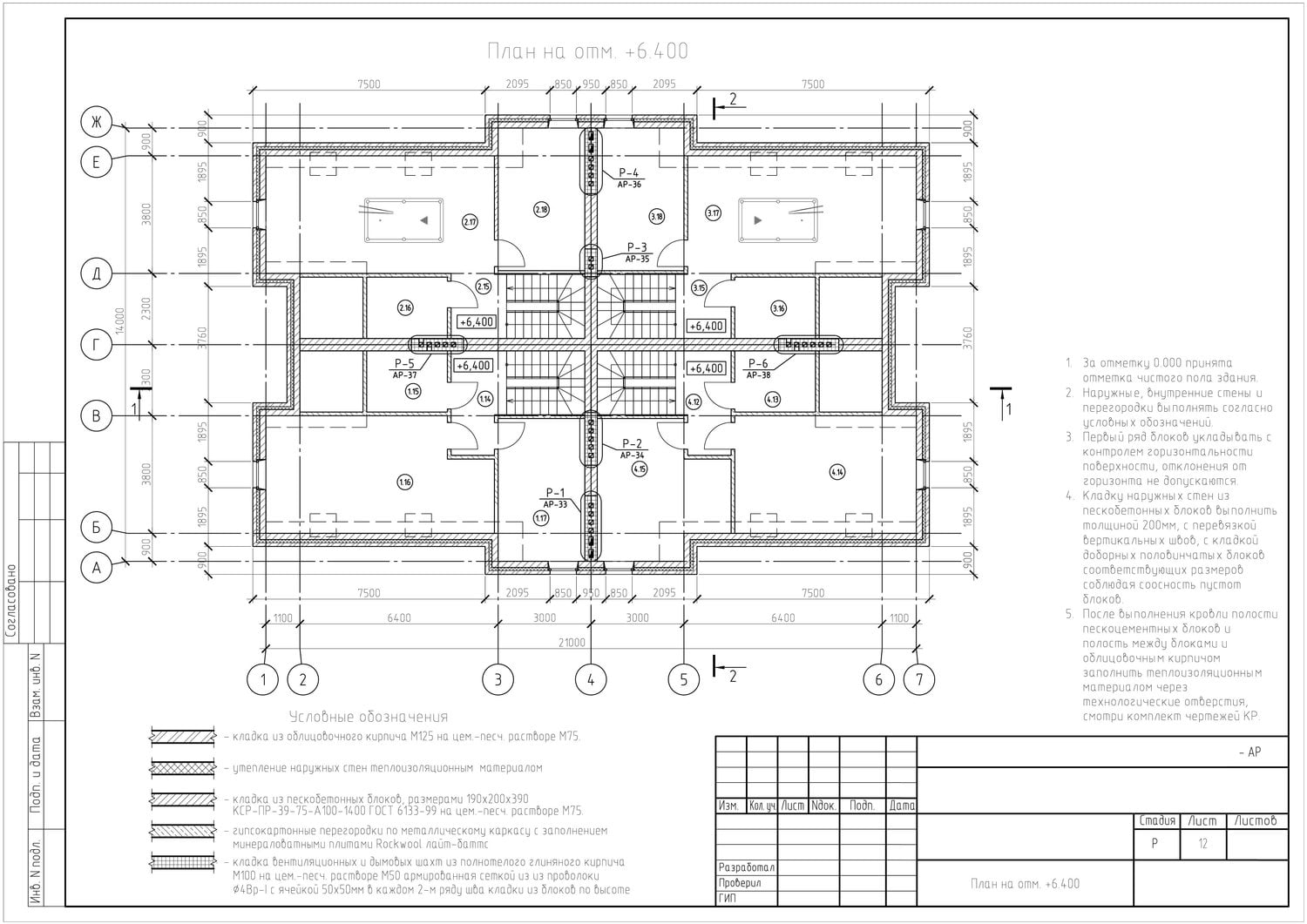
Тип строенияЖилой дом
-
МатериалШлакоблок
-
Тип фундаментаНа винтовых сваях
-
Площадь659
-
Этажность2
-
Габариты21000х14000
-
БалконДа
-
Второй светНет
-
ГаражНет
-
МансардаДа
-
Сауна/БассейнНет
-
ТеррасаНет
-
Цокольный этажНет









