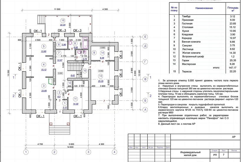
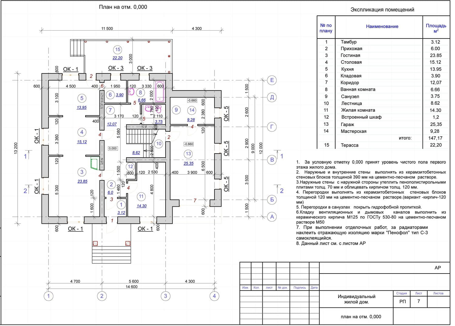
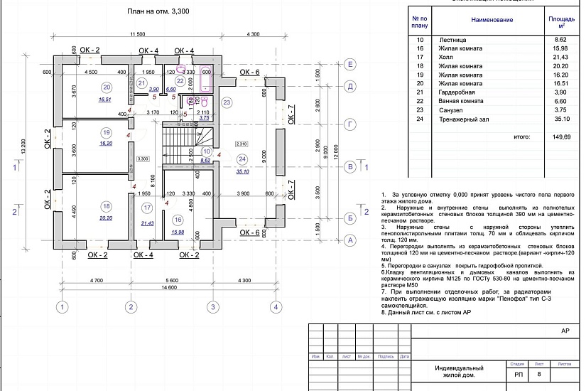
Характеристики
-
Тип строенияЖилой дом
-
МатериалКерамзитобетон
-
Тип фундаментаЛенточный
-
Площадь363
-
Этажность2
-
Габариты14600х13200
-
БалконНет
-
Второй светНет
-
ГаражДа
-
МансардаНет
-
Сауна/БассейнНет
-
ТеррасаДа
-
Цокольный этажДа






