Характеристики
-
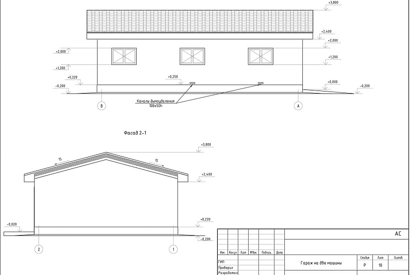
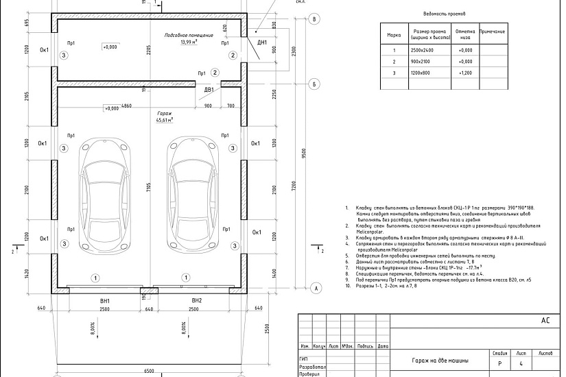
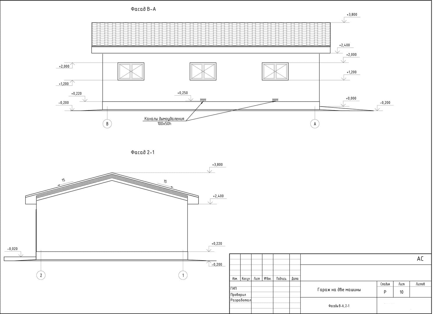
Тип строенияГараж
-
МатериалКерамзитобетон
-
Тип фундаментаНа винтовых сваях
-
Площадь59
-
Этажность1
-
Габариты9500х6500
-
БалконНет
-
Второй светНет
-
ГаражНет
-
МансардаНет
-
Сауна/БассейнНет
-
ТеррасаНет
-
Цокольный этажНет





