Характеристики
-
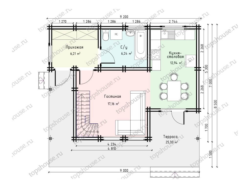
Тип строенияЖилой дом
-
МатериалДвойной брус
-
Тип фундаментаНа винтовых сваях
-
Площадь121
-
Этажность2
-
Габариты8500x9200
-
БалконДа
-
Второй светДа
-
ГаражНет
-
МансардаДа
-
Сауна/БассейнНет
-
ТеррасаНет
-
Цокольный этажНет






