Характеристики
-
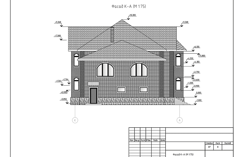
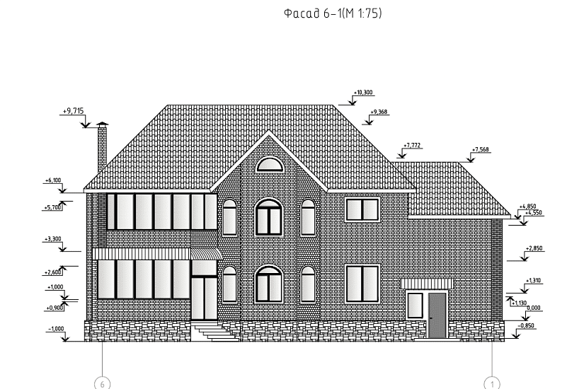
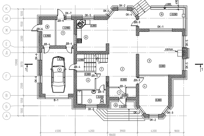
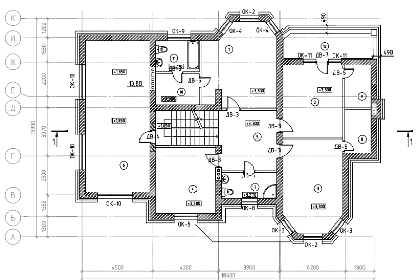
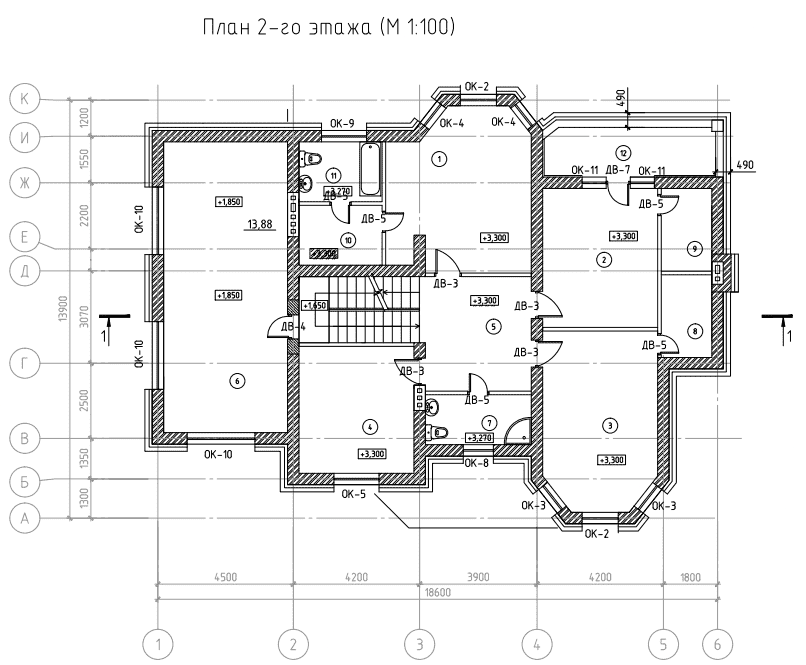
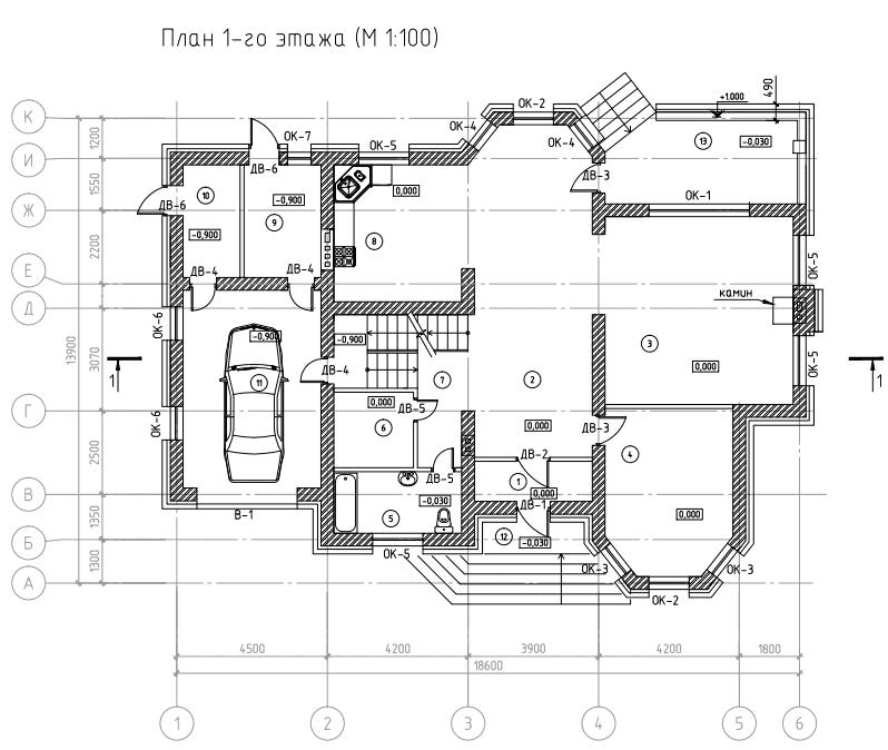
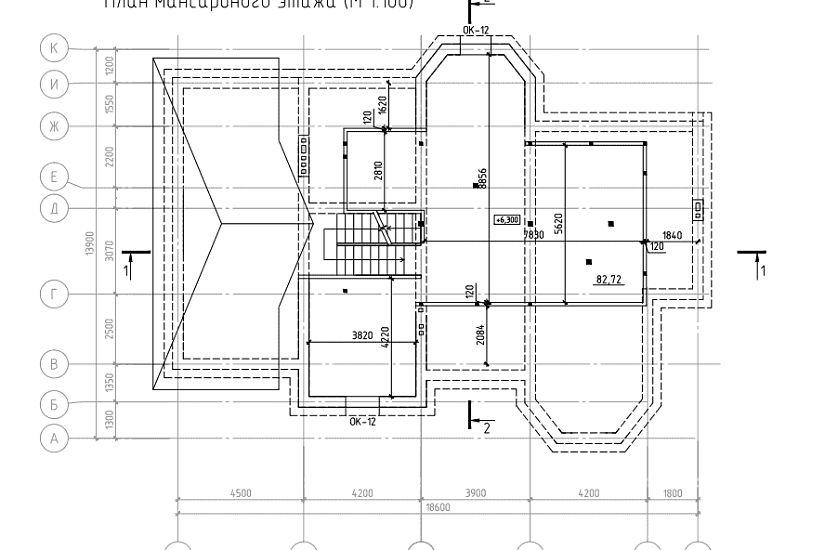
Тип строенияЖилой дом
-
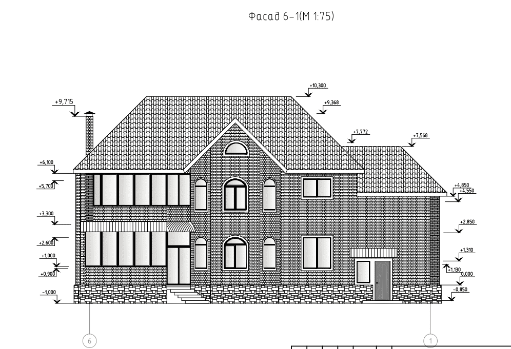
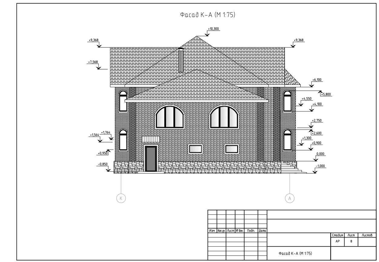
МатериалКирпич
-
Тип фундаментаНа винтовых сваях
-
Площадь422
-
Этажность2
-
Габариты13900х18600
-
БалконДа
-
Второй светНет
-
ГаражДа
-
МансардаДа
-
Сауна/БассейнНет
-
ТеррасаДа
-
Цокольный этажНет







