Характеристики
-
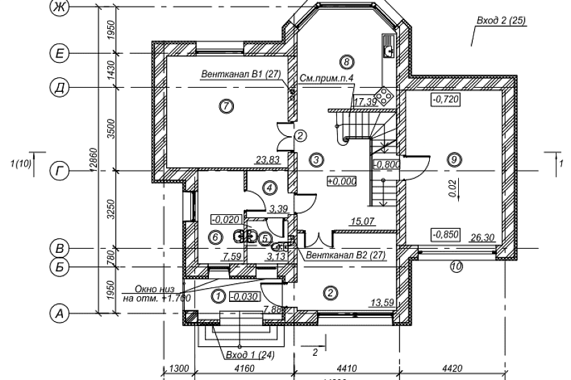
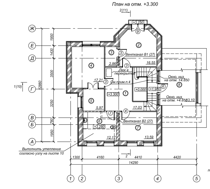
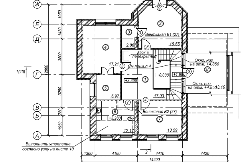
Тип строенияЖилой дом
-
МатериалКерамзитобетон
-
Тип фундаментаНа винтовых сваях
-
Площадь228
-
Этажность2
-
Габариты12860х14290
-
БалконДа
-
Второй светНет
-
ГаражДа
-
МансардаНет
-
Сауна/БассейнНет
-
ТеррасаДа
-
Цокольный этажНет









