Проект предоставлен партнером:
SIBDEREVO /
sibderevo.com/
Характеристики
-
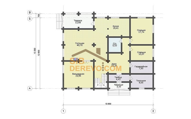
Тип строенияЖилой дом
-
МатериалОцилиндрованное бревно
-
Тип фундаментаНа винтовых сваях
-
Площадь278
-
Этажность2
-
Габариты13000х16000
-
БалконДа
-
Второй светДа
-
ГаражНет
-
МансардаНет
-
Сауна/БассейнДа
-
ТеррасаНет
-
Цокольный этажНет







