Проект предоставлен партнером:
SIBDEREVO /
sibderevo.com/
Характеристики
-
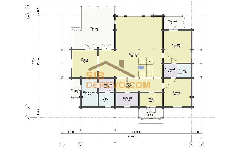
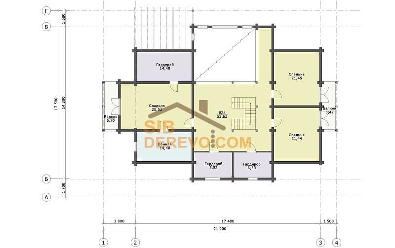
Тип строенияЖилой дом
-
МатериалОцилиндрованное бревно
-
Тип фундаментаНа винтовых сваях
-
Площадь431
-
Этажность2
-
Габариты17500х21900
-
БалконДа
-
Второй светДа
-
ГаражНет
-
МансардаНет
-
Сауна/БассейнНет
-
ТеррасаДа
-
Цокольный этажНет






