Проект предоставлен партнером:
/
brusdomnsk.ru/
Характеристики
-
Тип строенияЖилой дом
-
МатериалSIP-панель
-
Тип фундаментаНа винтовых сваях
-
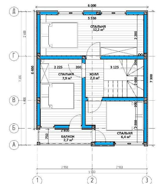
Площадь100
-
Этажность2
-
Габариты5900х7200
-
БалконДа
-
Второй светНет
-
ГаражНет
-
МансардаНет
-
Сауна/БассейнНет
-
ТеррасаДа
-
Цокольный этажНет




