Проект предоставлен партнером:
ООО «Крона Групп» /
kadrin.ru/kontaktyi
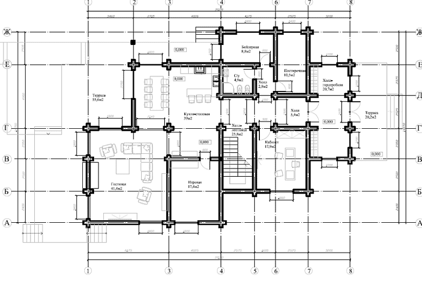
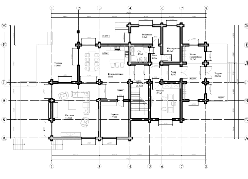
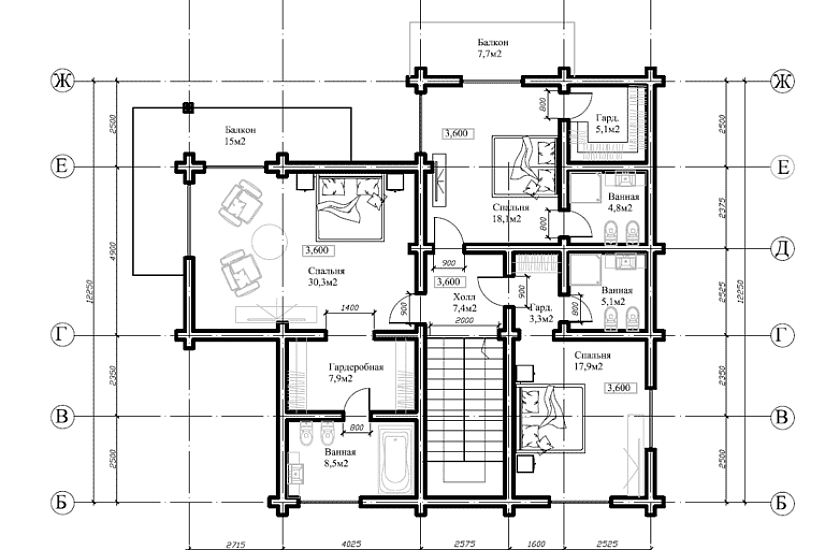
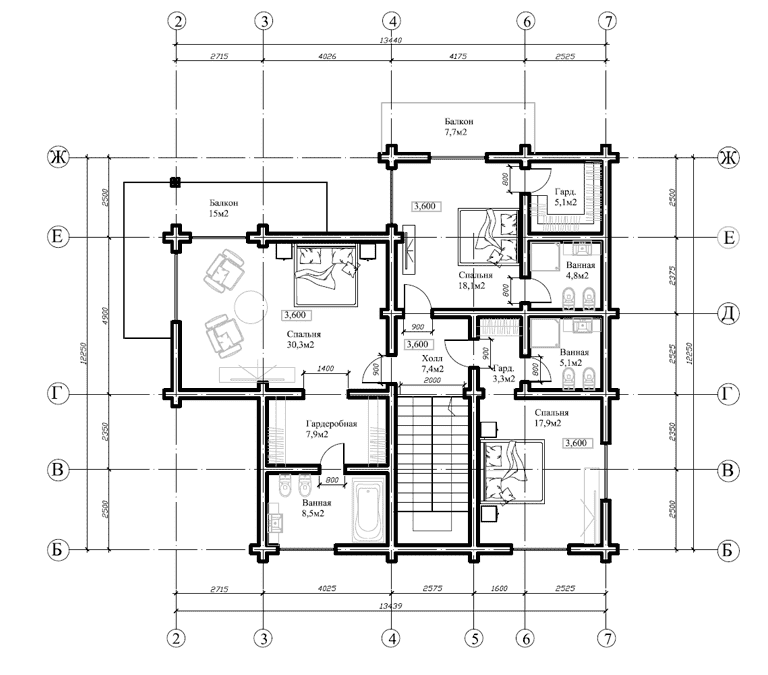
Характеристики
-
Тип строенияЖилой дом
-
МатериалБрус
-
Тип фундаментаНа винтовых сваях
-
Площадь320
-
Этажность2
-
Габариты14650х20500
-
БалконДа
-
Второй светНет
-
ГаражНет
-
МансардаНет
-
Сауна/БассейнНет
-
ТеррасаДа
-
Цокольный этажНет












