Проект предоставлен партнером:
ООО «Крона Групп» /
kadrin.ru/kontaktyi
Характеристики
-
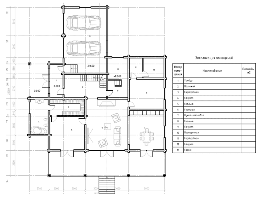
Тип строенияЖилой дом
-
МатериалКлееный брус
-
Тип фундаментаНа винтовых сваях
-
Площадь260
-
Этажность1
-
Габариты23189х18700
-
БалконНет
-
Второй светНет
-
ГаражДа
-
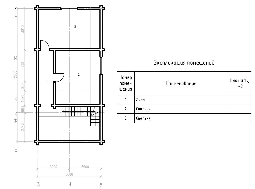
МансардаДа
-
Сауна/БассейнНет
-
ТеррасаДа
-
Цокольный этажНет










