Проект предоставлен партнером:
ООО «Крона Групп» /
kadrin.ru/kontaktyi
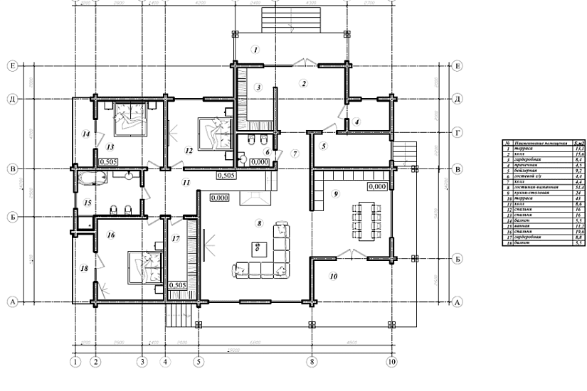
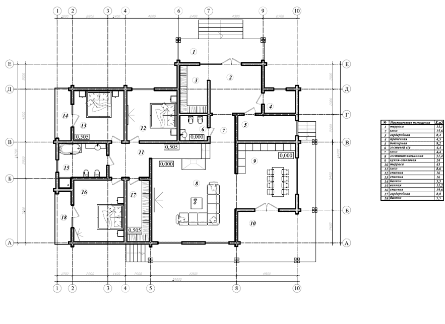
Характеристики
-
Тип строенияЖилой дом
-
МатериалКлееный брус
-
Тип фундаментаНа винтовых сваях
-
Площадь256
-
Этажность1
-
Габариты14200х19000
-
БалконНет
-
Второй светНет
-
ГаражНет
-
МансардаНет
-
Сауна/БассейнНет
-
ТеррасаДа
-
Цокольный этажНет








