Проект предоставлен партнером:
ООО «Крона Групп» /
kadrin.ru/kontaktyi
Характеристики
-
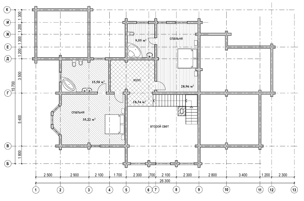
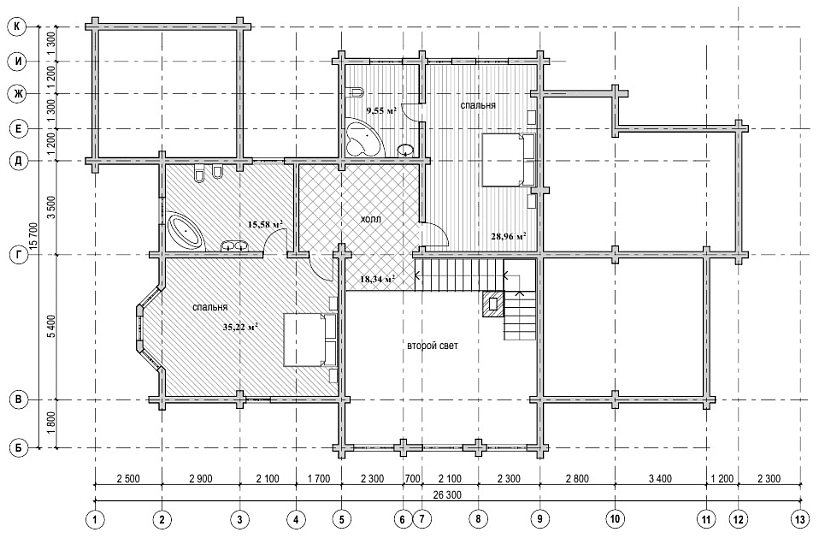
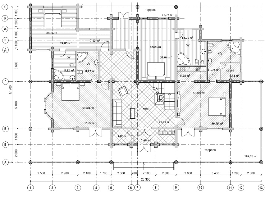
Тип строенияЖилой дом
-
МатериалБрус
-
Тип фундаментаНа винтовых сваях
-
Площадь231
-
Этажность1
-
Габариты17700х26300
-
БалконНет
-
Второй светДа
-
ГаражНет
-
МансардаДа
-
Сауна/БассейнДа
-
ТеррасаДа
-
Цокольный этажНет








