Проект предоставлен партнером:
ООО «Крона Групп» /
kadrin.ru/kontaktyi
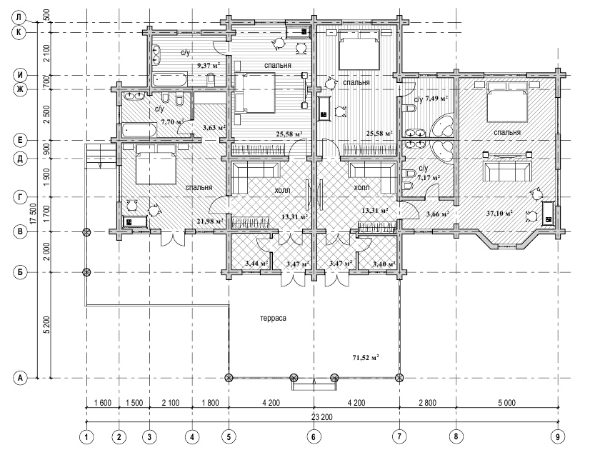
Характеристики
-
Тип строенияЖилой дом
-
МатериалБрус
-
Тип фундаментаНа винтовых сваях
-
Площадь181
-
Этажность1
-
Габариты17500х23200
-
БалконНет
-
Второй светНет
-
ГаражНет
-
МансардаНет
-
Сауна/БассейнНет
-
ТеррасаДа
-
Цокольный этажНет








