Проект предоставлен партнером:
/
gkrus-stroy.ru/
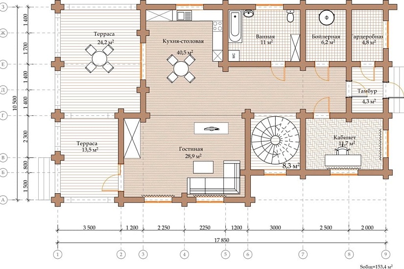
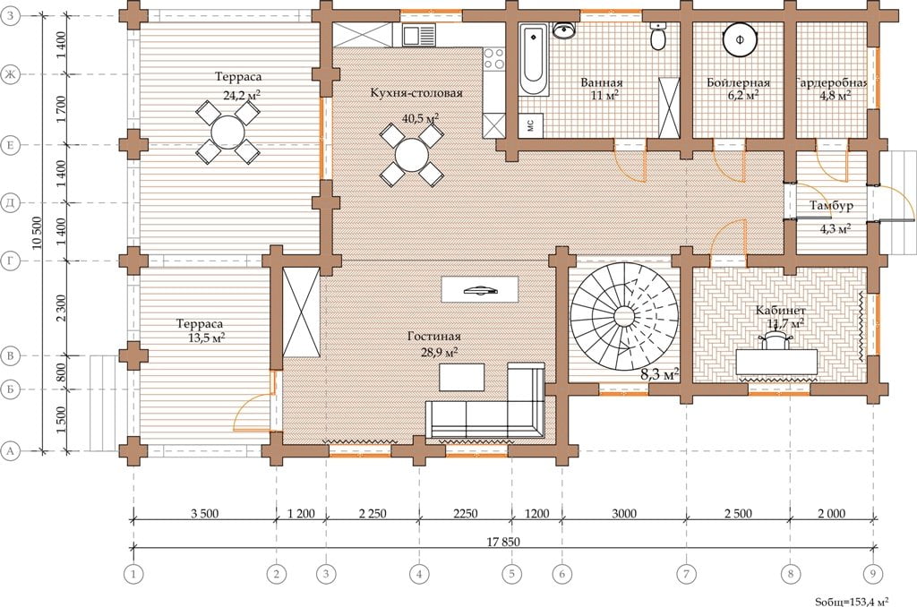
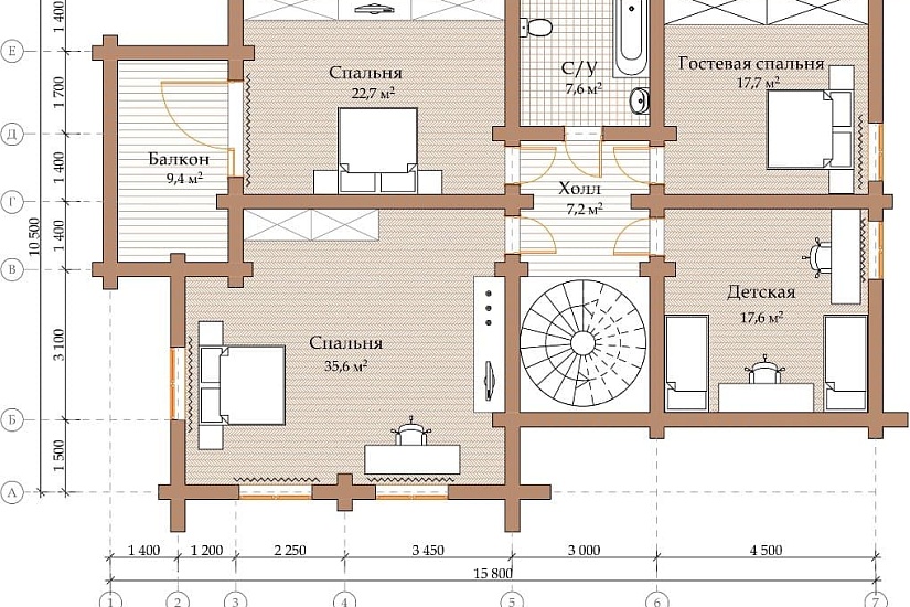
Характеристики
-
Тип строенияЖилой дом
-
МатериалОцилиндрованное бревно
-
Тип фундаментаНа винтовых сваях
-
Площадь124
-
Этажность2
-
Габариты10500х17850
-
БалконДа
-
Второй светНет
-
ГаражНет
-
МансардаНет
-
Сауна/БассейнНет
-
ТеррасаДа
-
Цокольный этажНет




