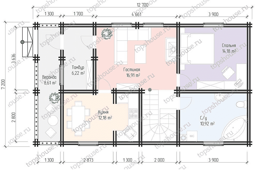
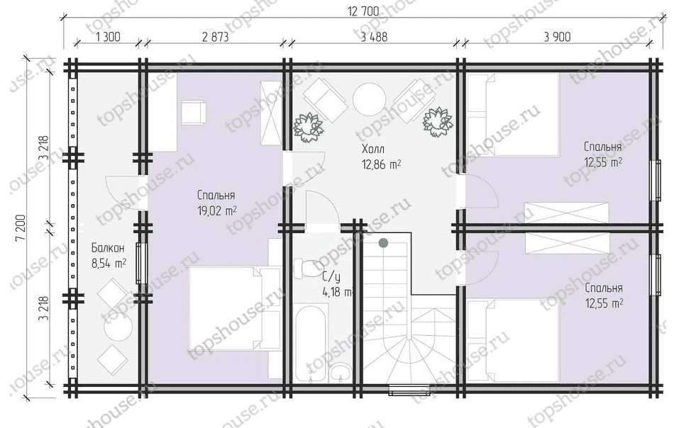
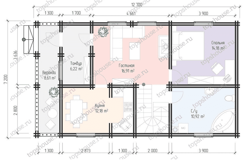
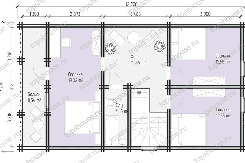
Характеристики
-
Тип строенияЖилой дом
-
МатериалДвойной брус
-
Тип фундаментаНа винтовых сваях
-
Площадь183
-
Этажность2
-
Габариты12700х7200
-
БалконДа
-
Второй светНет
-
ГаражНет
-
МансардаНет
-
Сауна/БассейнНет
-
ТеррасаДа
-
Цокольный этажНет






