Характеристики
-
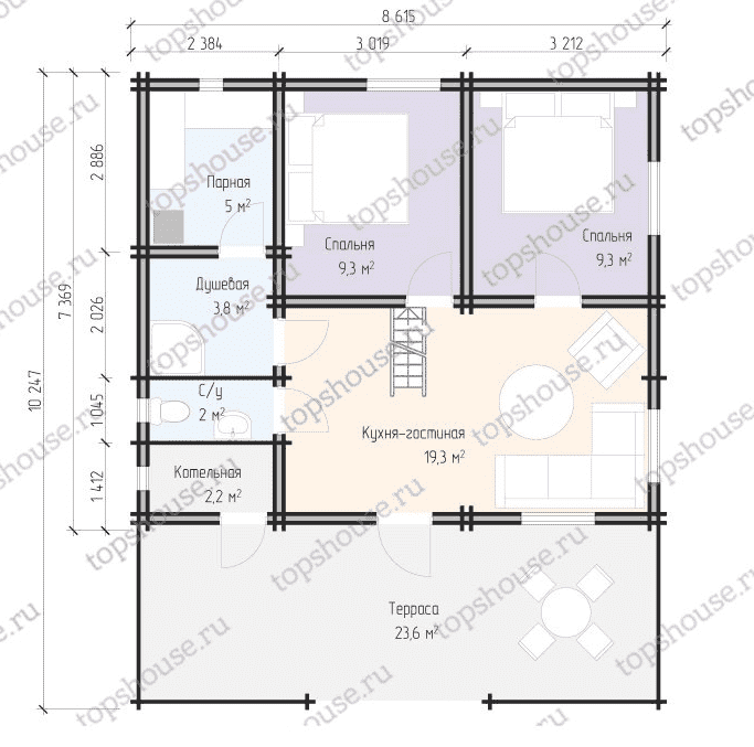
Тип строенияЖилой дом
-
МатериалДвойной брус
-
Тип фундаментаНа винтовых сваях
-
Площадь88
-
Этажность1
-
Габариты8600х10300
-
БалконНет
-
Второй светНет
-
ГаражНет
-
МансардаДа
-
Сауна/БассейнНет
-
ТеррасаДа
-
Цокольный этажНет






