Характеристики
-
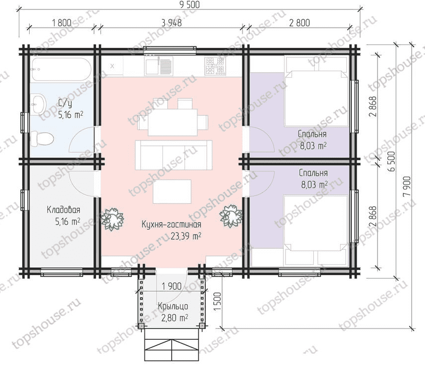
Тип строенияЖилой дом
-
МатериалДвойной брус
-
Тип фундаментаНа винтовых сваях
-
Площадь64
-
Этажность1
-
Габариты6500х9500
-
БалконНет
-
Второй светНет
-
ГаражНет
-
МансардаНет
-
Сауна/БассейнНет
-
ТеррасаНет
-
Цокольный этажНет





