Проект предоставлен партнером:
Сибирский Лес /
tdsibles.ru/
Характеристики
-
Тип строенияЖилой дом
-
МатериалБрус
-
Тип фундаментаНа винтовых сваях
-
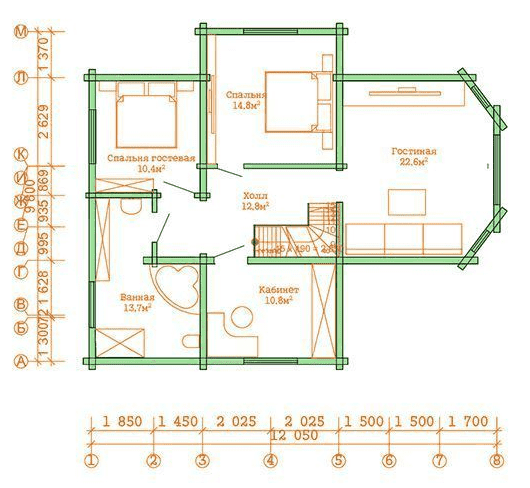
Площадь173.0000
-
Этажность2.0000
-
Габариты12000х9800
-
БалконНет
-
Второй светНет
-
ГаражНет
-
МансардаНет
-
Сауна/БассейнНет
-
ТеррасаНет
-
Цокольный этажНет



