Проект предоставлен партнером:
Сибирская Лесопромышленная Компания /
sibles72.ru
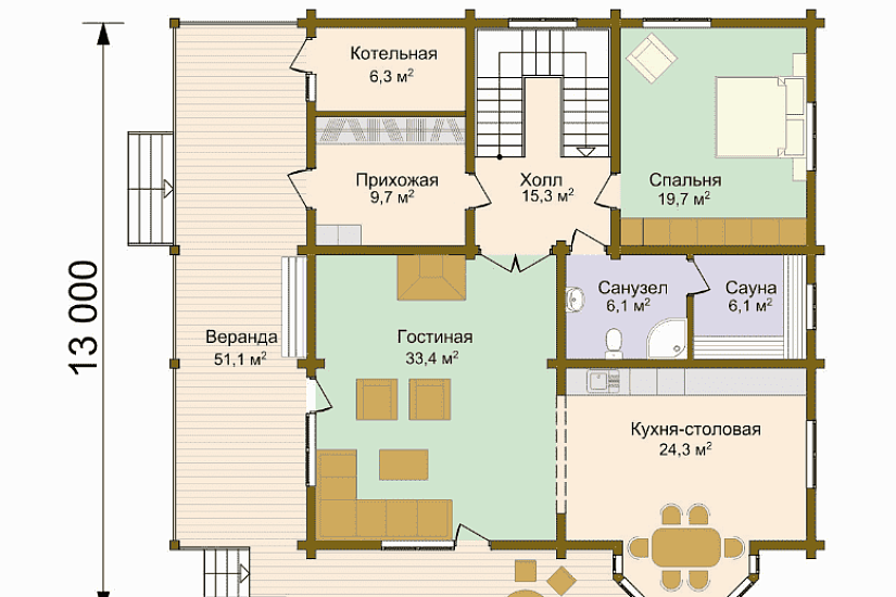
Характеристики
-
Тип строенияЖилой дом
-
МатериалБрус
-
Тип фундаментаНа винтовых сваях
-
Площадь288.0000
-
Этажность1.0000
-
Габариты13000х14000
-
БалконДа
-
Второй светНет
-
ГаражНет
-
МансардаДа
-
Сауна/БассейнДа
-
ТеррасаДа
-
Цокольный этажНет





