Проект предоставлен партнером:
/
челны.ростренд.рф/
Характеристики
-
Тип строенияЖилой дом
-
МатериалШлакоблок
-
Тип фундаментаНа винтовых сваях
-
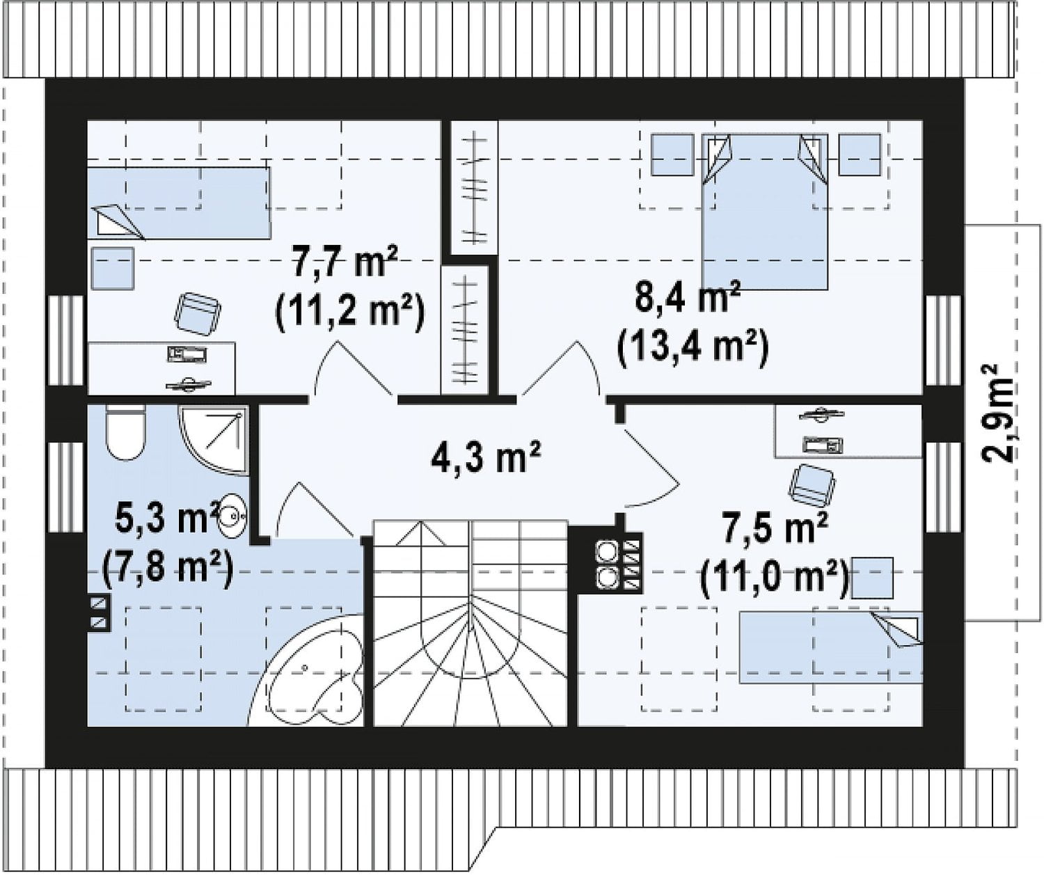
Площадь136
-
Этажность1
-
Габариты9500х7100
-
БалконДа
-
Второй светНет
-
ГаражНет
-
МансардаДа
-
Сауна/БассейнНет
-
ТеррасаДа
-
Цокольный этажНет
