Проект предоставлен партнером:
/
челны.ростренд.рф/
Характеристики
-
Тип строенияЖилой дом
-
МатериалШлакоблок
-
Тип фундаментаНа винтовых сваях
-
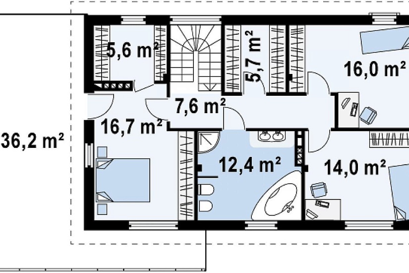
Площадь231
-
Этажность2
-
Габариты9400х16400
-
БалконДа
-
Второй светНет
-
ГаражДа
-
МансардаНет
-
Сауна/БассейнНет
-
ТеррасаДа
-
Цокольный этажНет

