Проект предоставлен партнером:
/
челны.ростренд.рф/
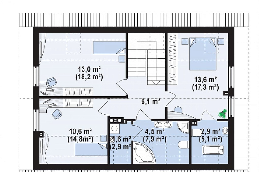
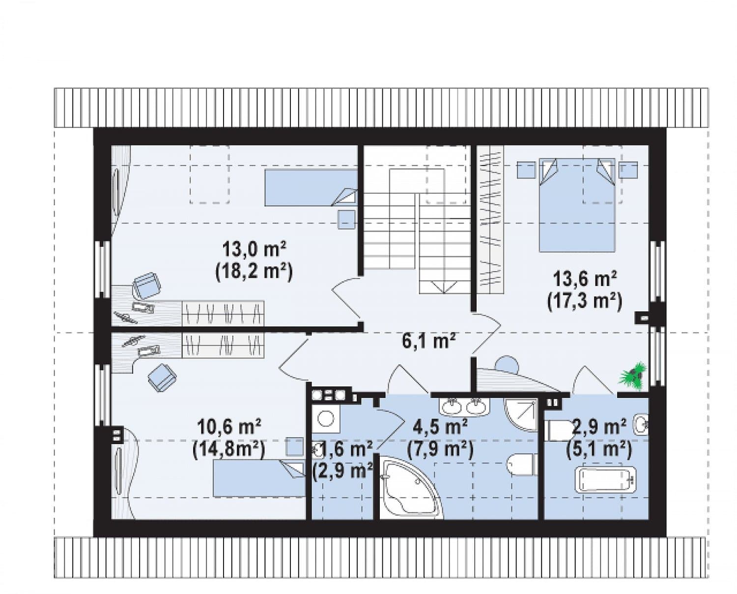
Характеристики
-
Тип строенияЖилой дом
-
МатериалКерамзитобетон
-
Тип фундаментаНа винтовых сваях
-
Площадь194
-
Этажность1
-
Габариты8300х11600
-
БалконДа
-
Второй светНет
-
ГаражНет
-
МансардаДа
-
Сауна/БассейнНет
-
ТеррасаДа
-
Цокольный этажНет
