Проект предоставлен партнером:
/
челны.ростренд.рф/
Характеристики
-
Тип строенияЖилой дом
-
МатериалГазосиликат
-
Тип фундаментаНа винтовых сваях
-
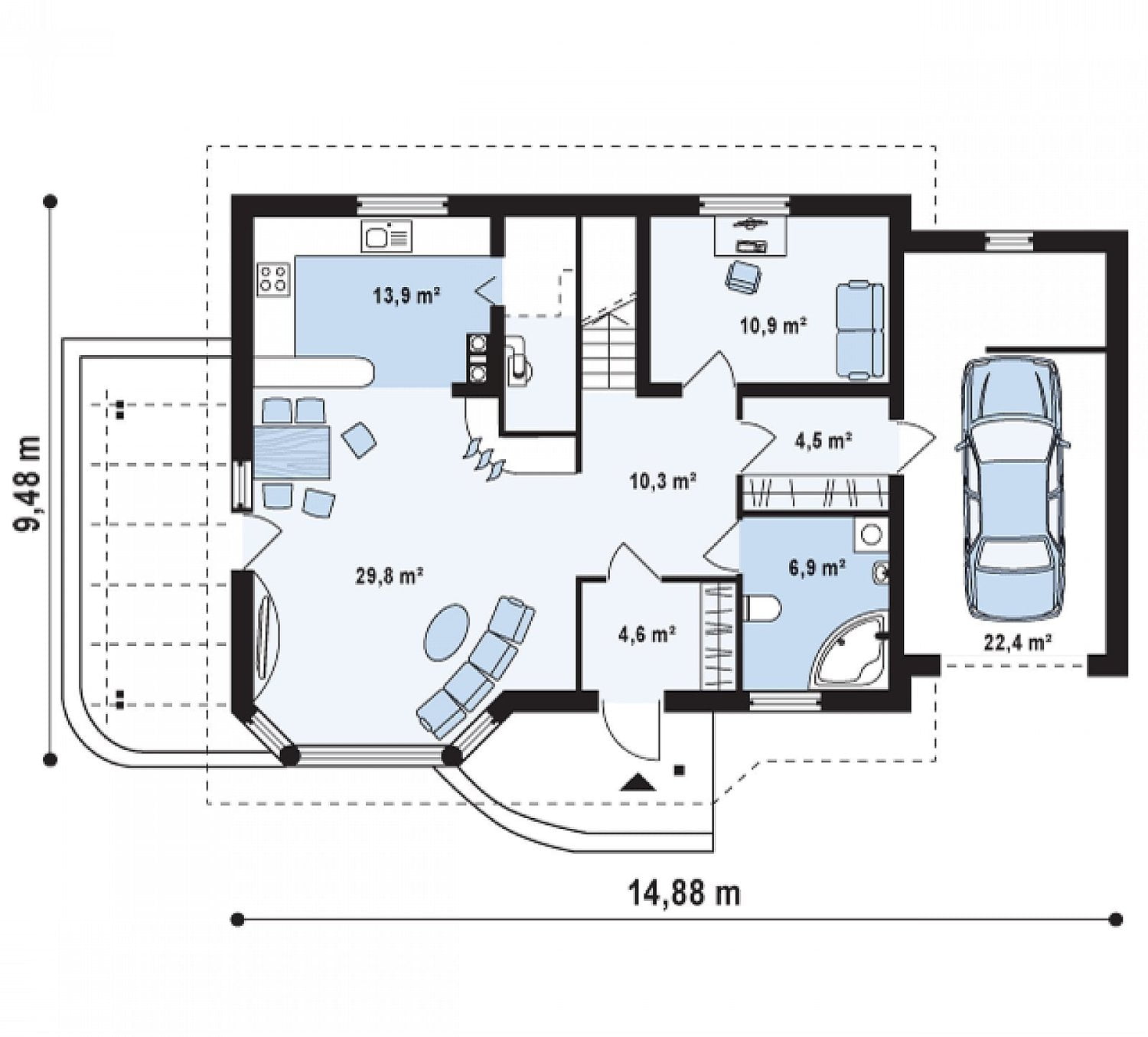
Площадь222
-
Этажность1
-
Габариты9400х14800
-
БалконНет
-
Второй светНет
-
ГаражДа
-
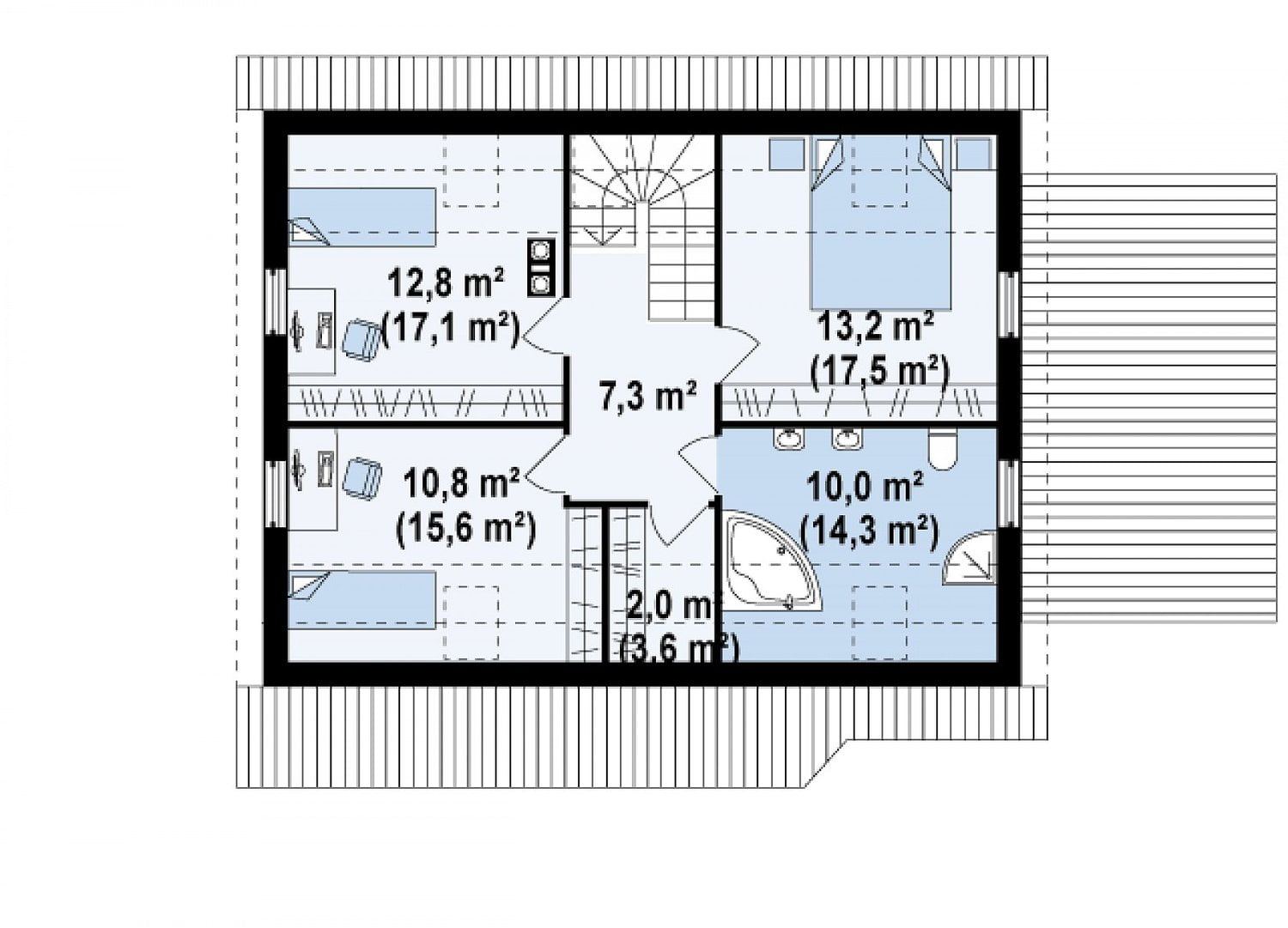
МансардаДа
-
Сауна/БассейнНет
-
ТеррасаДа
-
Цокольный этажНет


