Проект предоставлен партнером:
/
lh.vu/
Характеристики
-
Тип строенияЖилой дом
-
МатериалКлееный брус
-
Тип фундаментаНа винтовых сваях
-
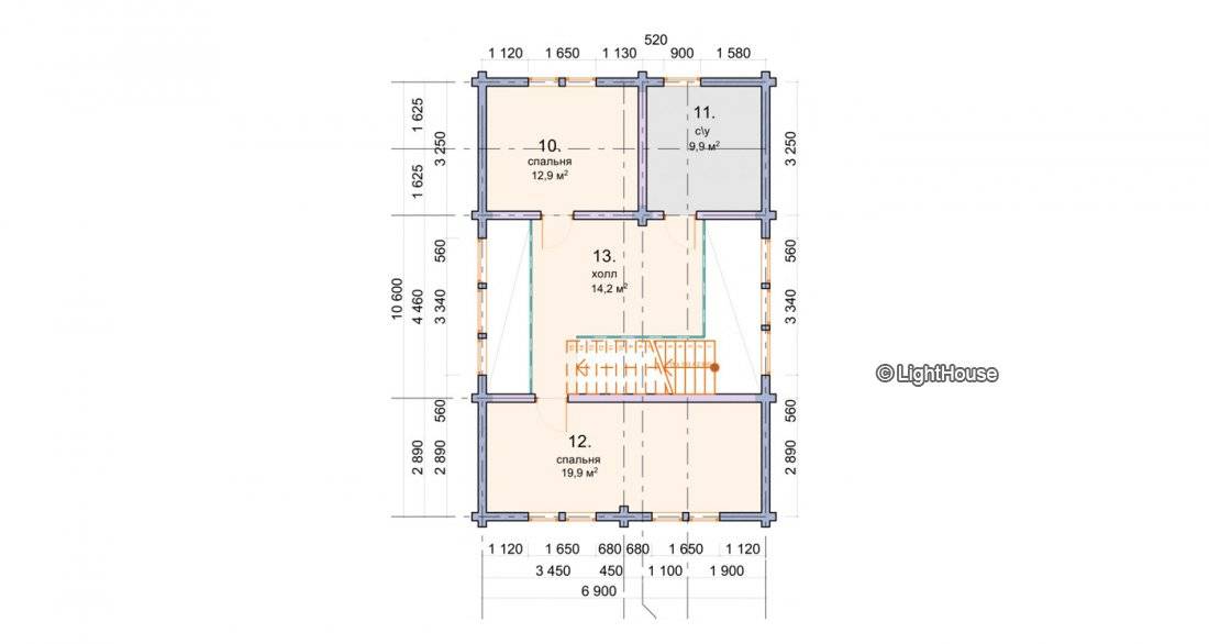
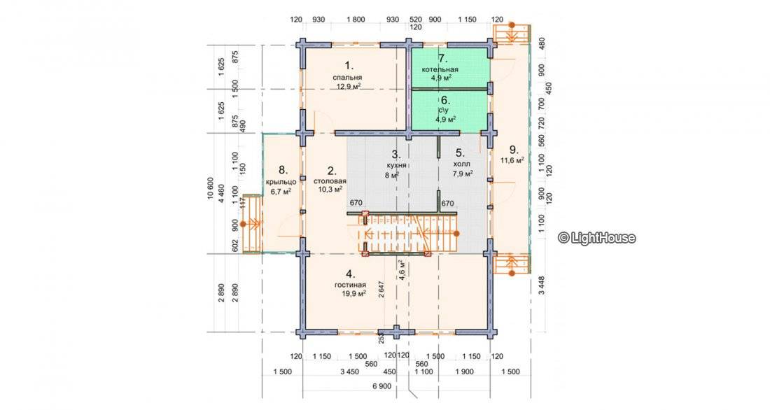
Площадь109
-
Этажность1
-
Габариты6900х10600
-
БалконНет
-
Второй светНет
-
ГаражНет
-
МансардаДа
-
Сауна/БассейнНет
-
ТеррасаДа
-
Цокольный этажНет









