Проект предоставлен партнером:
/
lh.vu/
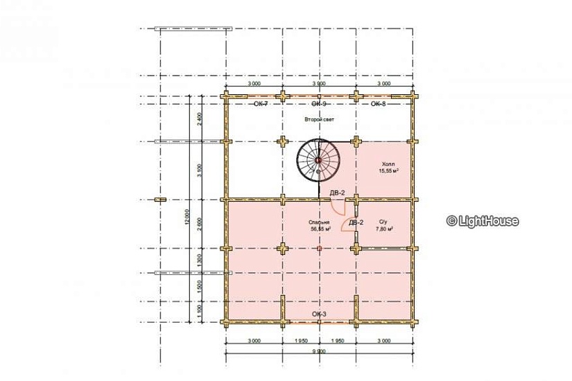
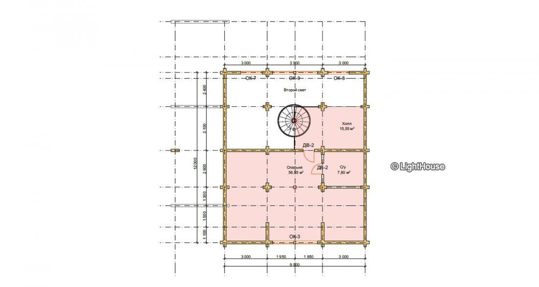
Характеристики
-
Тип строенияЖилой дом
-
МатериалКлееный брус
-
Тип фундаментаНа винтовых сваях
-
Площадь313
-
Этажность1
-
Габариты13400х15600
-
БалконНет
-
Второй светДа
-
ГаражДа
-
МансардаДа
-
Сауна/БассейнНет
-
ТеррасаНет
-
Цокольный этажНет









